Новостройка » Дом » Fuente Álamo » La
LARROSA LARROSA

Fuente Álamo · Las Palas Дом · Новостройка

Характеристики

  • Застроенная площадь

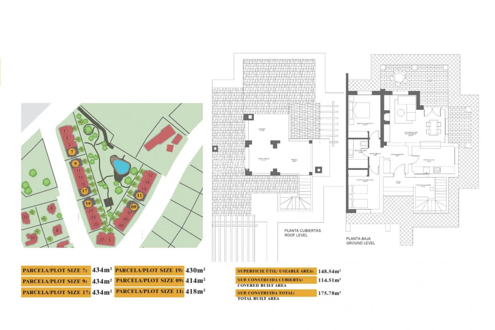
    175m2
  • Участок

    430m2
  • Спальни

    2
  • Ванные комнаты

    1
Спальни Спальни:

2

Ванные комнаты Ванные комнаты:

1

Застроенная площадь Застроенная площадь:

175m2

Участок Участок:

430m2

Готово к заселению
Garden
Gated
Number of Parking Spaces: 1
Air Conditioning: Pre-Installed
Double Bedrooms: 2
Terrace: 45 Msq.
Parking - Space
Location: Rural, Urbanisation
Beach: 7500 Meters
Useable Build Space: 148 Msq.
Storage / Trastero

Описание

Расположение

Larrosa&co

Провести опрос

Responsable del tratamiento: Proiectum 2015, SL, Finalidad del tratamiento: Gestión y control de los servicios ofrecidos a través de la página Web de Servicios inmobiliarios, Envío de información a traves de newsletter y otros, Legitimación: Por consentimiento, Destinatarios: No se cederan los datos, salvo para elaborar contabilidad, Derechos de las personas interesadas: Acceder, rectificar y suprimir los datos, solicitar la portabilidad de los mismos, oponerse altratamiento y solicitar la limitación de éste, Procedencia de los datos: El Propio interesado, Información Adicional: Puede consultarse la información adicional y detallada sobre protección de datos Aquí.
WhatsApp