Nieuwbouw Woningen » Villa » Fuente Álamo &
LARROSA LARROSA

Fuente Álamo · Las Palas Villa · Nieuwbouw Woningen

Fuente Álamo · Las Palas Villa · Nieuwbouw Woningen

Kenmerken

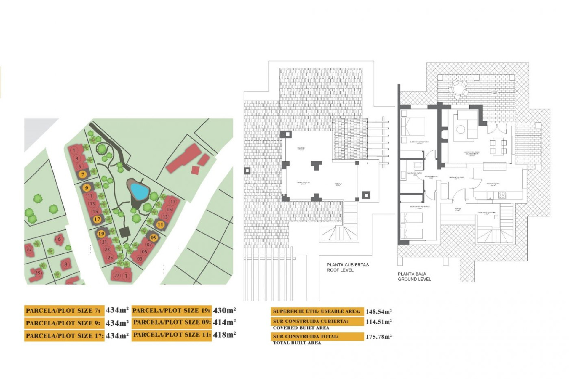
  • Meters

    175m2
  • Perceel

    430m2
  • Slaapkamers

    2
  • Badkamers

    1
Slaapkamers Slaapkamers:

2

Badkamers Badkamers:

1

Gebouwd Gebouwd:

175m2

Plot Plot:

430m2

Key Ready
Garden
Gated
Number of Parking Spaces: 1
Air Conditioning: Pre-Installed
Double Bedrooms: 2
Terrace: 45 Msq.
Parking - Space
Location: Rural, Urbanisation
Beach: 7500 Meters
Useable Build Space: 148 Msq.
Storage / Trastero

Beschrijving

Kaart

Larrosa&co

Maak een onderzoek

Responsable del tratamiento: Proiectum 2015, SL, Finalidad del tratamiento: Gestión y control de los servicios ofrecidos a través de la página Web de Servicios inmobiliarios, Envío de información a traves de newsletter y otros, Legitimación: Por consentimiento, Destinatarios: No se cederan los datos, salvo para elaborar contabilidad, Derechos de las personas interesadas: Acceder, rectificar y suprimir los datos, solicitar la portabilidad de los mismos, oponerse altratamiento y solicitar la limitación de éste, Procedencia de los datos: El Propio interesado, Información Adicional: Puede consultarse la información adicional y detallada sobre protección de datos Aquí.
WhatsApp