Obra Nueva » Chalet » Fuente Álamo »
LARROSA LARROSA

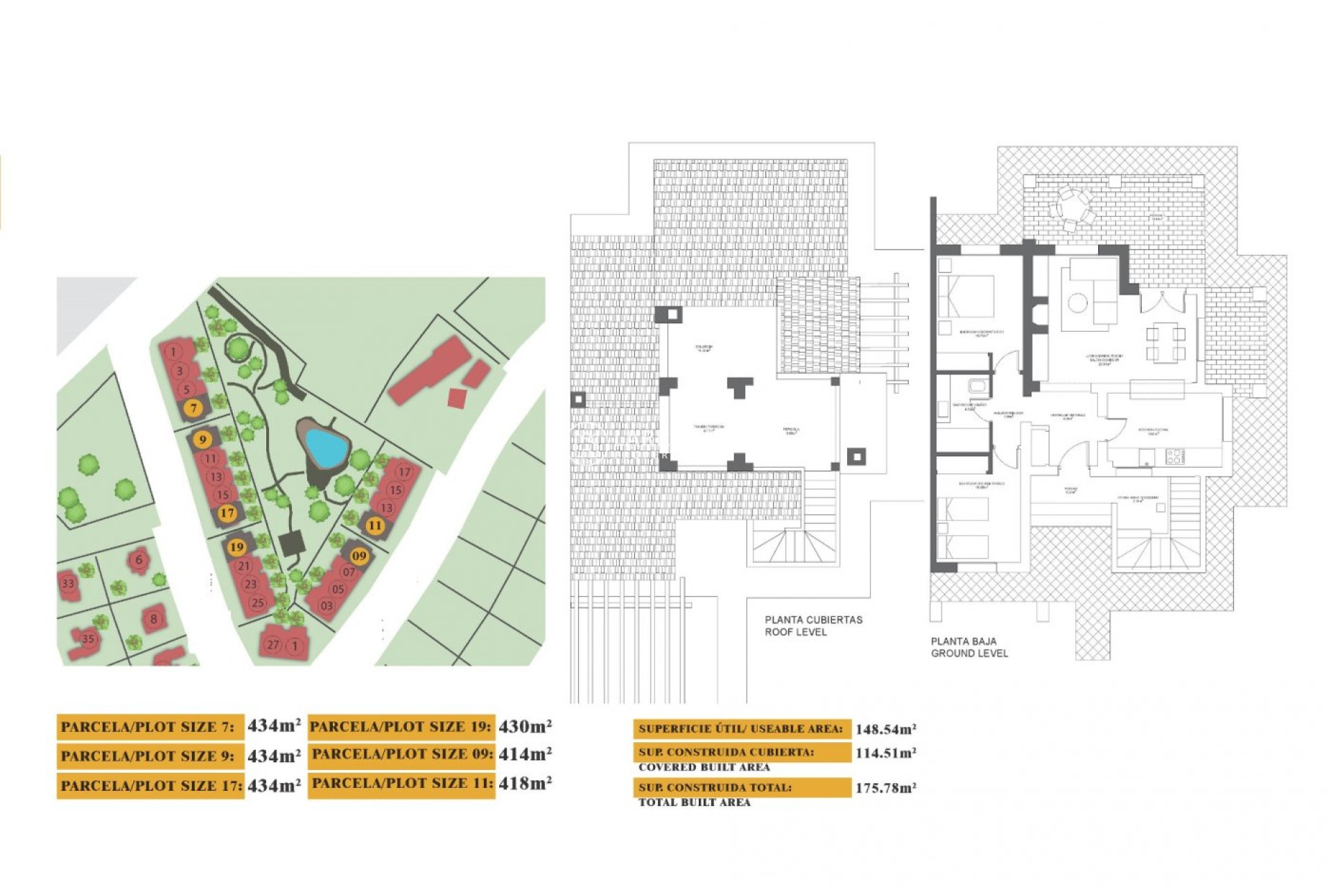
Fuente Álamo · Las Palas Chalet · Obra Nueva

Características

  • Metros

    175m2
  • Parcela

    430m2
  • Dormitorios

    2
  • Baños

    1
Habitaciones Habitaciones:

2

Baños Baños:

1

Construidos Construidos:

175m2

Parcela Parcela:

430m2

Llave en mano
Garden
Gated
Number of Parking Spaces: 1
Air Conditioning: Pre-Installed
Double Bedrooms: 2
Terrace: 45 Msq.
Parking - Space
Location: Rural, Urbanisation
Beach: 7500 Meters
Useable Build Space: 148 Msq.
Storage / Trastero

Descripción

Mapa

Larrosa&co

Realiza una consulta

Responsable del tratamiento: Proiectum 2015, SL, Finalidad del tratamiento: Gestión y control de los servicios ofrecidos a través de la página Web de Servicios inmobiliarios, Envío de información a traves de newsletter y otros, Legitimación: Por consentimiento, Destinatarios: No se cederan los datos, salvo para elaborar contabilidad, Derechos de las personas interesadas: Acceder, rectificar y suprimir los datos, solicitar la portabilidad de los mismos, oponerse altratamiento y solicitar la limitación de éste, Procedencia de los datos: El Propio interesado, Información Adicional: Puede consultarse la información adicional y detallada sobre protección de datos Aquí.
WhatsApp