Застроенная площадь
Участок
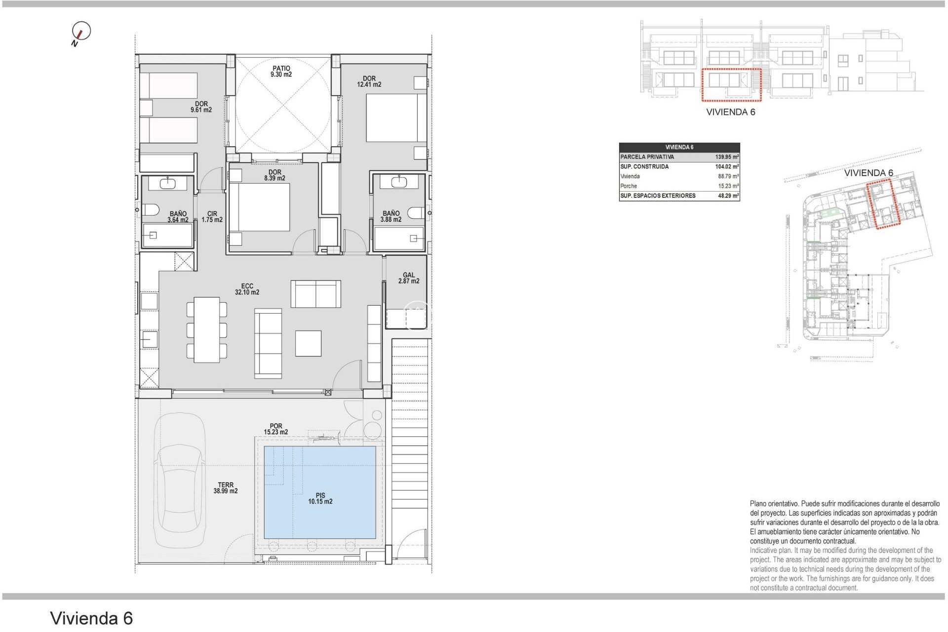
Спальни
Ванные комнаты
Бассейн
3
2
104m2
48m2
Да
Новые бунгало на продажу в Пилар-де-ла-Орадада, в 3 км от пляжа Бутиковый жилой комплекс в Пилар-де-ла-Орадада Откройте для себя этот эксклюзивный новый жилой комплекс из современных бунгало, расположенный в Пилар-де-ла-Орадада, самом южном городе Коста-Бланки. Этот бутиковый проект состоит всего из 14 тщательно спроектированных домов с 2 или 3 спальнями и 2 ванными комнатами, предлагая идеальное сочетание комфорта, стиля и средиземноморского образа жизни. Комплекс расположен в тихом жилом районе в нескольких минутах ходьбы от центра города, что позволяет жителям легко добраться до магазинов, ресторанов, супермаркетов и основных услуг. Пилар-де-ла-Орадада известен своей гостеприимной атмосферой, традиционным испанским шармом и оживленной главной улицей, заполненной кафе, бутиками и очаровательными площадями. Современные бунгало с частными открытыми пространствами Дома были спроектированы так, чтобы предлагать светлые интерьеры и функциональную планировку, идеально подходящую как для постоянного проживания, так и для отдыха. Бунгало на первом этаже имеют частный сад и частный бассейн, создавая идеальные условия для наслаждения жизнью на свежем воздухе, принятия солнечных ванн или развлечения семьи и друзей. Бунгало на верхнем этаже включают просторную террасу и частный солярий на крыше. Солярий оснащен летней кухней и предлагает возможность добавить частный бассейн или джакузи за дополнительную плату, что делает его идеальным местом для отдыха, наслаждаясь теплым средиземноморским климатом и открытыми видами. Каждая недвижимость включает в себя частное парковочное место в жилом комплексе для дополнительного удобства. Качественное строительство и современные удобства Эти новые дома построены из качественных материалов и оснащены современным оборудованием, разработанным для обеспечения комфорта и энергоэффективности в течение всего года. Алюминиевые наружные столярные изделия с терморазрывом Полностью оборудованные кухни с бытовой техникой Ванные комнаты, оборудованные зеркалами и душевыми перегородками Внутреннее и наружное светодиодное освещение Система горячего водоснабжения с энергоэффективной аэротермальной технологией Предварительная установка для канального кондиционирования Сочетание современного дизайна и практичных функций делает эти дома отличным вариантом для покупателей, которые ищут современную недвижимость на побережье Коста-Бланка. Отличное расположение рядом с пляжами и гольф-полями Пилар-де-ла-Орадада имеет стратегическое расположение рядом с некоторыми из лучших пляжей и гольф-полями в регионе. Пляж Торре-де-ла-Орадада 3 км Пляж Миль-Пальмерас 3 км Гольф-клуб Lo Romero 6 км Международный аэропорт Мурсии 45 км Аэропорт Аликанте-Эльче 75 км Этот район также предлагает отличное дорожное сообщение с близлежащими прибрежными городами, пристанями для яхт и развлекательными заведениями, что делает его идеальной отправной точкой для знакомства с Коста-Бланкой и Коста-Калидой. Найдите свой новый дом на Коста-Бланке Если вы ищете современный новый бунгало рядом с пляжем с отличными удобствами и фантастическим расположением, этот жилой комплекс в Пилар-де-ла-Орадада — отличная возможность. Свяжитесь с нами сегодня, чтобы получить дополнительную информацию или назначить посещение.