Metros
Parcela
Dormitorios
Baños
Piscina
3
2
104m2
48m2
Sí
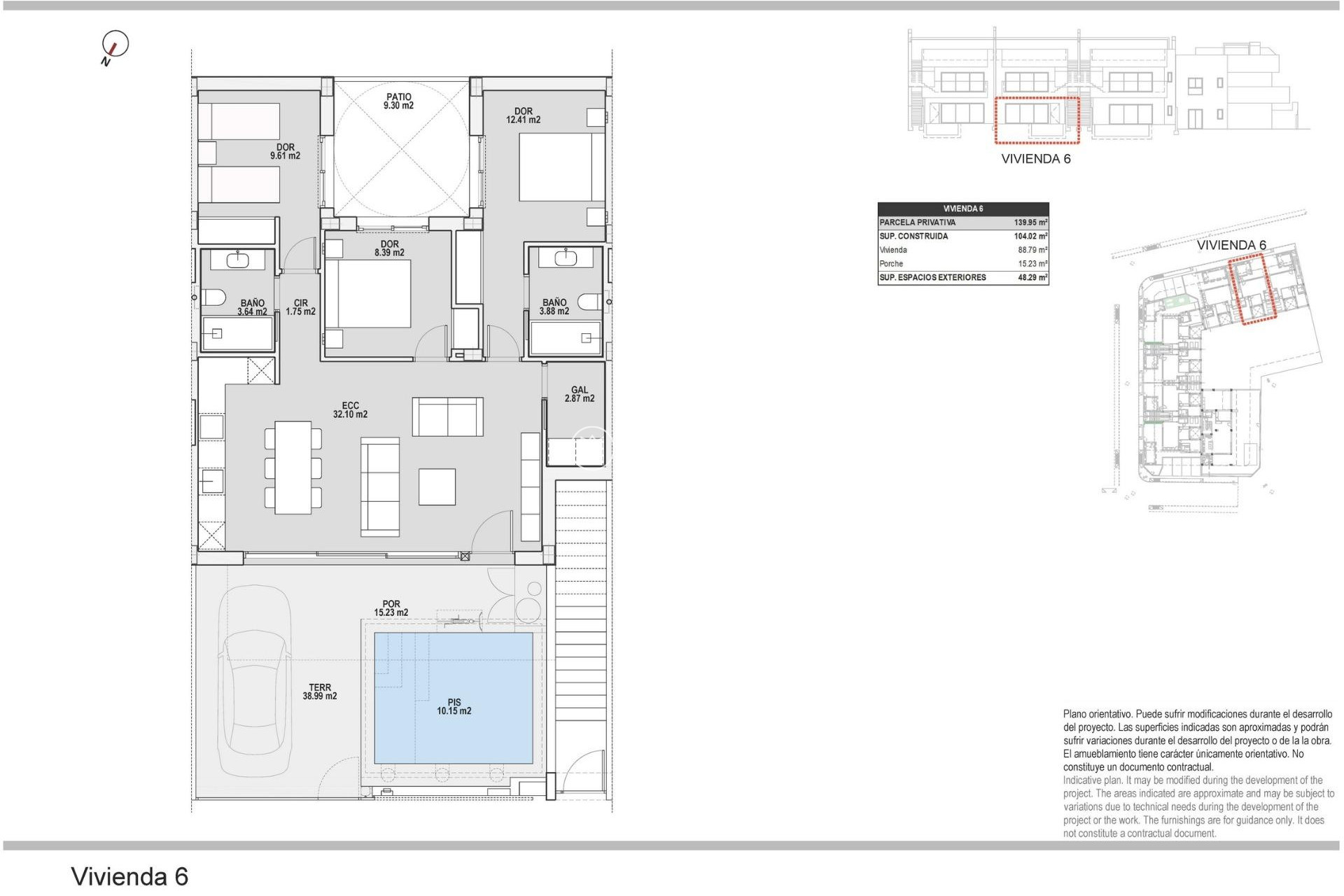
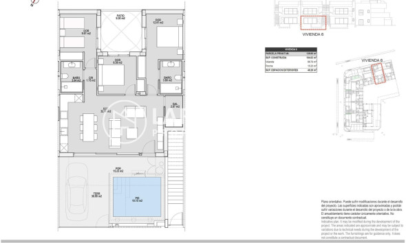
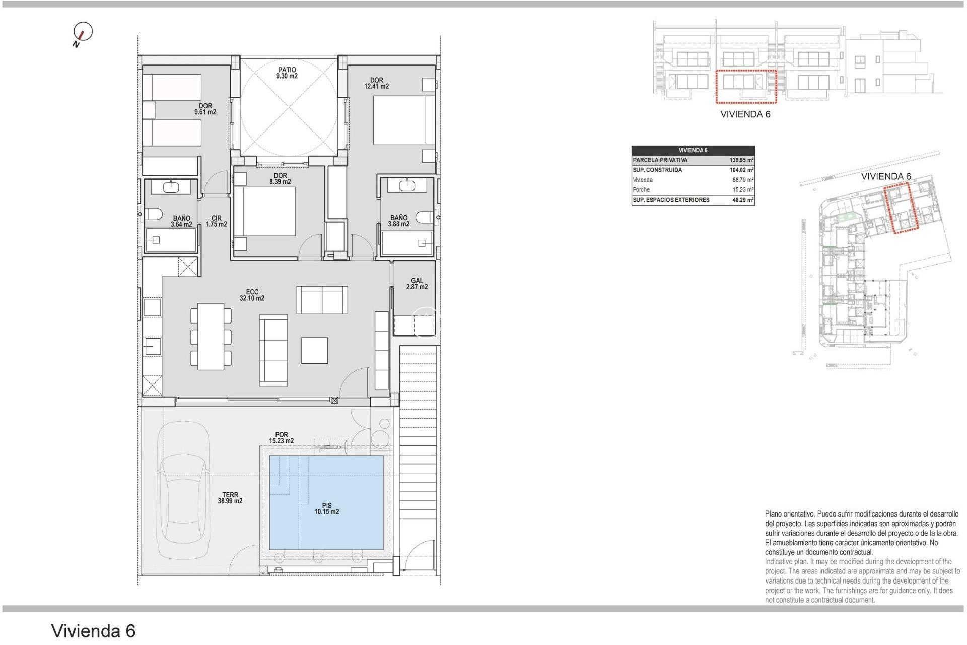
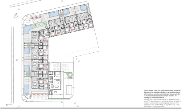
Bungalows de nueva construcción en venta en Pilar de la Horadada, a 3 km de la playa Complejo residencial boutique en Pilar de la Horadada Descubra este exclusivo complejo residencial de nueva construcción con modernos bungalows situado en Pilar de la Horadada, la localidad más meridional de la Costa Blanca. Este proyecto boutique consta de solo 14 viviendas cuidadosamente diseñadas con 2 o 3 dormitorios y 2 baños, que ofrecen una combinación ideal de comodidad, estilo y estilo de vida mediterráneo. La urbanización está situada en una tranquila zona residencial a poca distancia del centro de la ciudad, lo que permite a los residentes disfrutar de un fácil acceso a tiendas, restaurantes, supermercados y servicios esenciales. Pilar de la Horadada es conocida por su ambiente acogedor, su encanto tradicional español y su animada calle principal llena de cafeterías, boutiques y encantadoras plazas. Bungalows modernos con espacios exteriores privados Las viviendas han sido diseñadas para ofrecer interiores luminosos y distribuciones funcionales, perfectas tanto para vivir de forma permanente como para pasar las vacaciones. Los bungalows de la planta baja cuentan con jardín privado y piscina privada, creando el entorno perfecto para disfrutar de la vida al aire libre, tomar el sol o recibir a familiares y amigos. Los bungalows de la planta superior incluyen una amplia terraza y un solárium privado en la azotea. El solárium cuenta con una cocina de verano y ofrece la opción de añadir una piscina privada o un jacuzzi con un coste adicional, lo que lo convierte en un espacio ideal para relajarse mientras se disfruta del cálido clima mediterráneo y de las vistas panorámicas. Cada propiedad incluye una plaza de aparcamiento privada dentro del complejo residencial para mayor comodidad. Construcción de calidad y características modernas Estas viviendas de nueva construcción están construidas con materiales de calidad e instalaciones modernas diseñadas para garantizar el confort y la eficiencia energética durante todo el año. Carpintería exterior de aluminio con rotura de puente térmico Cocinas totalmente equipadas con electrodomésticos incluidos Baños equipados con espejos y mamparas de ducha Iluminación LED interior y exterior Sistema de agua caliente con tecnología aerotérmica de alta eficiencia energética Preinstalación para aire acondicionado por conductos La combinación de diseño moderno y características prácticas hace que estas viviendas sean una excelente opción para los compradores que buscan una propiedad contemporánea en la Costa Blanca. Excelente ubicación cerca de playas y campos de golf Pilar de la Horadada goza de una ubicación estratégica cerca de algunas de las mejores playas y campos de golf de la región. Playa de Torre de la Horadada a 3 km Playa de Mil Palmeras a 3 km Campo de golf Lo Romero a 6 km Aeropuerto Internacional de la Región de Murcia a 45 km Aeropuerto de Alicante-Elche a 75 km La zona también ofrece excelentes conexiones por carretera con las localidades costeras cercanas, los puertos deportivos y las instalaciones de ocio, lo que la convierte en una base perfecta para explorar la Costa Blanca y la Costa Cálida. Encuentre su nuevo hogar en la Costa Blanca Si busca un bungalow moderno de nueva construcción cerca de la playa, con excelentes servicios y una ubicación fantástica, esta promoción residencial en Pilar de la Horadada es una oportunidad excepcional. Póngase en contacto con nosotros hoy mismo para obtener más información o concertar una visita.