Meters
Bedrooms
Bathrooms
Pool
3
2
135m2
Yes
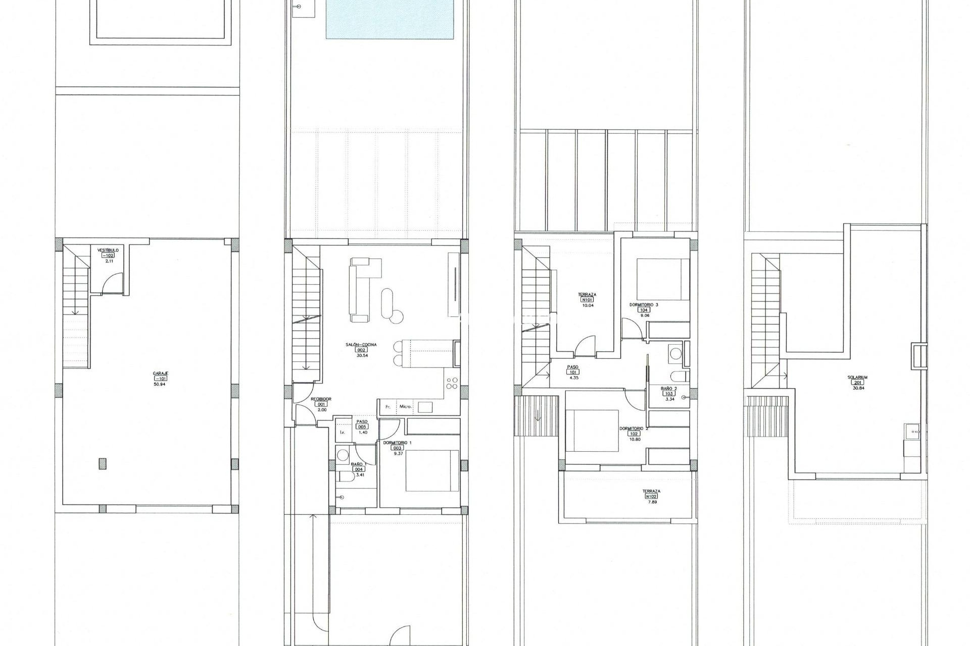
New-Build Townhouses on the Frontline of La Serena Golf in Los Alcázares Premium Location by the Golf Course and the Sea Discover an exclusive residential development of 31 new-build townhouses located on the frontline of La Serena Golf in Los Alcázares, just 600 m from the Mar Menor. Situated in the heart of the Costa Cálida, this privileged setting combines golf, beach, and Mediterranean lifestyle. With all amenities nearby and excellent road access, it is the ideal location for both holidays and year-round living. Modern Homes with Private Pool and Rooftop Solarium Each house features a stylish contemporary design and bright interior spaces. The homes are arranged across three levels plus rooftop solarium, offering maximum comfort and privacy: Basement with private garage for 2 cars and access to a patio Ground floor with open-plan living room and kitchen leading to a garden and private pool, 1 bedroom, and 1 bathroom First floor with 2 bedrooms, 1 bathroom, and 2 terraces Rooftop solarium with summer kitchen, ideal for relaxing and enjoying panoramic views East and west orientations ensure excellent natural light and outdoor living throughout the day. High-Quality Finishes and Comfort These houses are built to the highest standards, offering premium features including: Private swimming pool Basement garage for 2 cars with motorized door Aerothermal hot-water system Fully installed ducted air conditioning Furnished and equipped kitchen Fully equipped bathrooms with furniture, mirrors, and shower screens Security entrance door Live Between the Sea and the Fairway Set among lush Mediterranean landscapes, this exclusive community offers peaceful living next to the Serena Golf course, a renowned 18-hole course surrounded by nature and tranquil lakes. The warm, shallow waters of the Mar Menor are perfect for swimming and enjoying water sports such as sailing, paddle surf, and kayaking year-round. Key distances: Beach (Mar Menor): 600 m La Serena Golf: next to the complex Los Alcázares center: 2 km Cartagena: 22 km Murcia city: 40 km Murcia Airport: 30 km Alicante Airport: 90 km Secure Your Mediterranean Lifestyle Whether you are looking for a permanent residence, a holiday home, or a profitable investment, these houses offer luxury, convenience, and a superior coastal lifestyle. Contact us today to schedule a viewing and secure your new home in Los Alcázares.