Metros
Dormitorios
Baños
Piscina
3
2
135m2
Sí
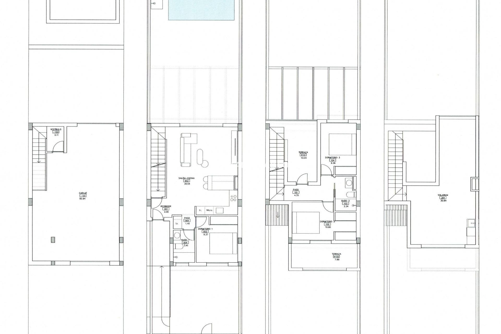
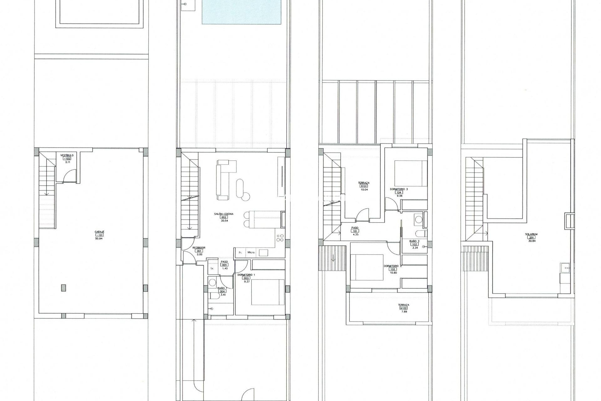
Casas adosadas de nueva construcción en primera línea de La Serena Golf en Los Alcázares Ubicación privilegiada junto al campo de golf y el mar Descubra una exclusiva urbanización de 31 casas adosadas de nueva construcción situadas en primera línea de La Serena Golf en Los Alcázares, a solo 600 m del Mar Menor. Situada en el corazón de la Costa Cálida, esta privilegiada ubicación combina golf, playa y estilo de vida mediterráneo. Con todos los servicios cerca y un excelente acceso por carretera, es el lugar ideal tanto para vacaciones como para vivir todo el año. Viviendas modernas con piscina privada y solárium en la azotea Cada vivienda cuenta con un elegante diseño contemporáneo y espacios interiores luminosos. Las viviendas están distribuidas en tres niveles más un solárium en la azotea, lo que ofrece el máximo confort y privacidad: Sótano con garaje privado para 2 coches y acceso a un patio Planta baja con salón y cocina diáfanos que dan a un jardín y una piscina privada, 1 dormitorio y 1 baño Primera planta con 2 dormitorios, 1 baño y 2 terrazas Solárium en la azotea con cocina de verano, ideal para relajarse y disfrutar de las vistas panorámicas La orientación este y oeste garantiza una excelente luz natural y la posibilidad de disfrutar del aire libre durante todo el día. Acabados de alta calidad y comodidad Estas viviendas están construidas con los más altos estándares de calidad y ofrecen características premium, entre las que se incluyen: Piscina privada Garaje subterráneo para 2 coches con puerta motorizada Sistema de agua caliente aerotérmica Aire acondicionado por conductos totalmente instalado Cocina amueblada y equipada Baños totalmente equipados con muebles, espejos y mamparas de ducha Puerta de entrada de seguridad Viva entre el mar y la calle Situada en medio de exuberantes paisajes mediterráneos, esta exclusiva comunidad ofrece una vida tranquila junto al campo de golf Serena, un reconocido campo de 18 hoyos rodeado de naturaleza y tranquilos lagos. Las cálidas y poco profundas aguas del Mar Menor son perfectas para nadar y disfrutar de deportes acuáticos como la vela, el paddle surf y el kayak durante todo el año. Distancias clave: Playa (Mar Menor): 600 m La Serena Golf: junto al complejo Centro de Los Alcázares: 2 km Cartagena: 22 km Ciudad de Murcia: 40 km Aeropuerto de Murcia: 30 km Aeropuerto de Alicante: 90 km Asegúrese su estilo de vida mediterráneo Tanto si busca una residencia permanente, una casa de vacaciones o una inversión rentable, estas viviendas ofrecen lujo, comodidad y un estilo de vida costero superior. Póngase en contacto con nosotros hoy mismo para concertar una visita y asegurarse su nueva vivienda en Los Alcázares.