Nieuwbouw Woningen » Apartment » Orihuela c
LARROSA LARROSA

Orihuela costa · Playa Flamenca Apartment · Nieuwbouw Woningen

Orihuela costa · Playa Flamenca Apartment · Nieuwbouw Woningen

Kenmerken

  • Meters

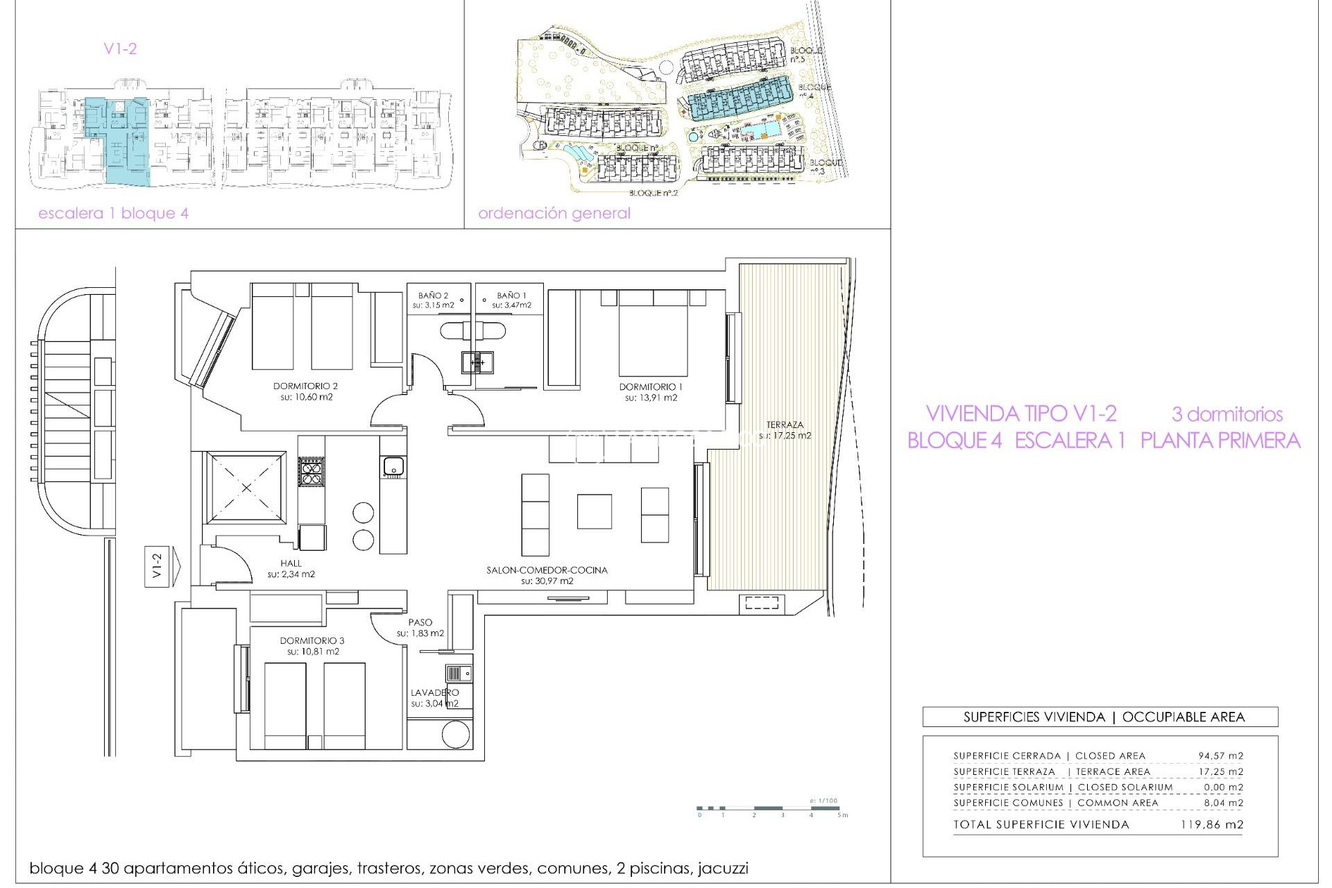
    94m2
  • Slaapkamers

    3
  • Badkamers

    2
  • Zwembad

    Ja
Slaapkamers Slaapkamers:

3

Badkamers Badkamers:

2

Gebouwd Gebouwd:

94m2

Zwembad Zwembad:

Ja

Communal Pool
Gated
Number of Parking Spaces: 1
Near Trees
Near Schools
Air Conditioning: Pre-Installed
Double Bedrooms: 3
Near Commercial Center
Near Bus Route
Elevator/Lift
Location: Coastal, Urbanisation
Terrace: 17 Msq.
Parking - Space
Beach: 500 Meters
Useable Build Space: 84 Msq.
Storage / Trastero

Beschrijving

Kaart

Larrosa&co

Maak een onderzoek

Responsable del tratamiento: Proiectum 2015, SL, Finalidad del tratamiento: Gestión y control de los servicios ofrecidos a través de la página Web de Servicios inmobiliarios, Envío de información a traves de newsletter y otros, Legitimación: Por consentimiento, Destinatarios: No se cederan los datos, salvo para elaborar contabilidad, Derechos de las personas interesadas: Acceder, rectificar y suprimir los datos, solicitar la portabilidad de los mismos, oponerse altratamiento y solicitar la limitación de éste, Procedencia de los datos: El Propio interesado, Información Adicional: Puede consultarse la información adicional y detallada sobre protección de datos Aquí.
WhatsApp