Obra Nueva » Apartamento » Orihuela costa &
LARROSA LARROSA

Orihuela costa · Playa Flamenca Apartamento · Obra Nueva

Orihuela costa · Playa Flamenca Apartamento · Obra Nueva

Características

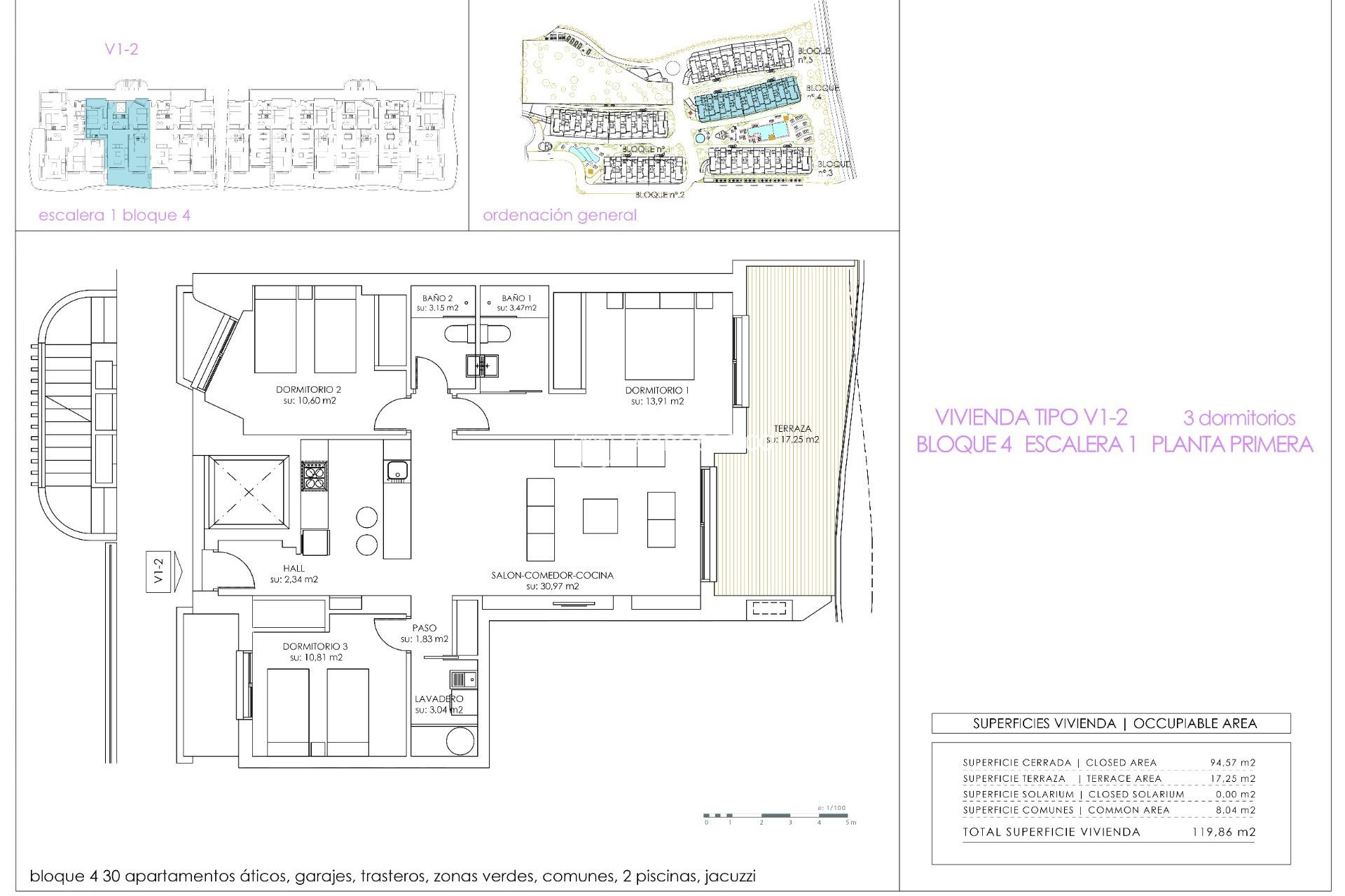
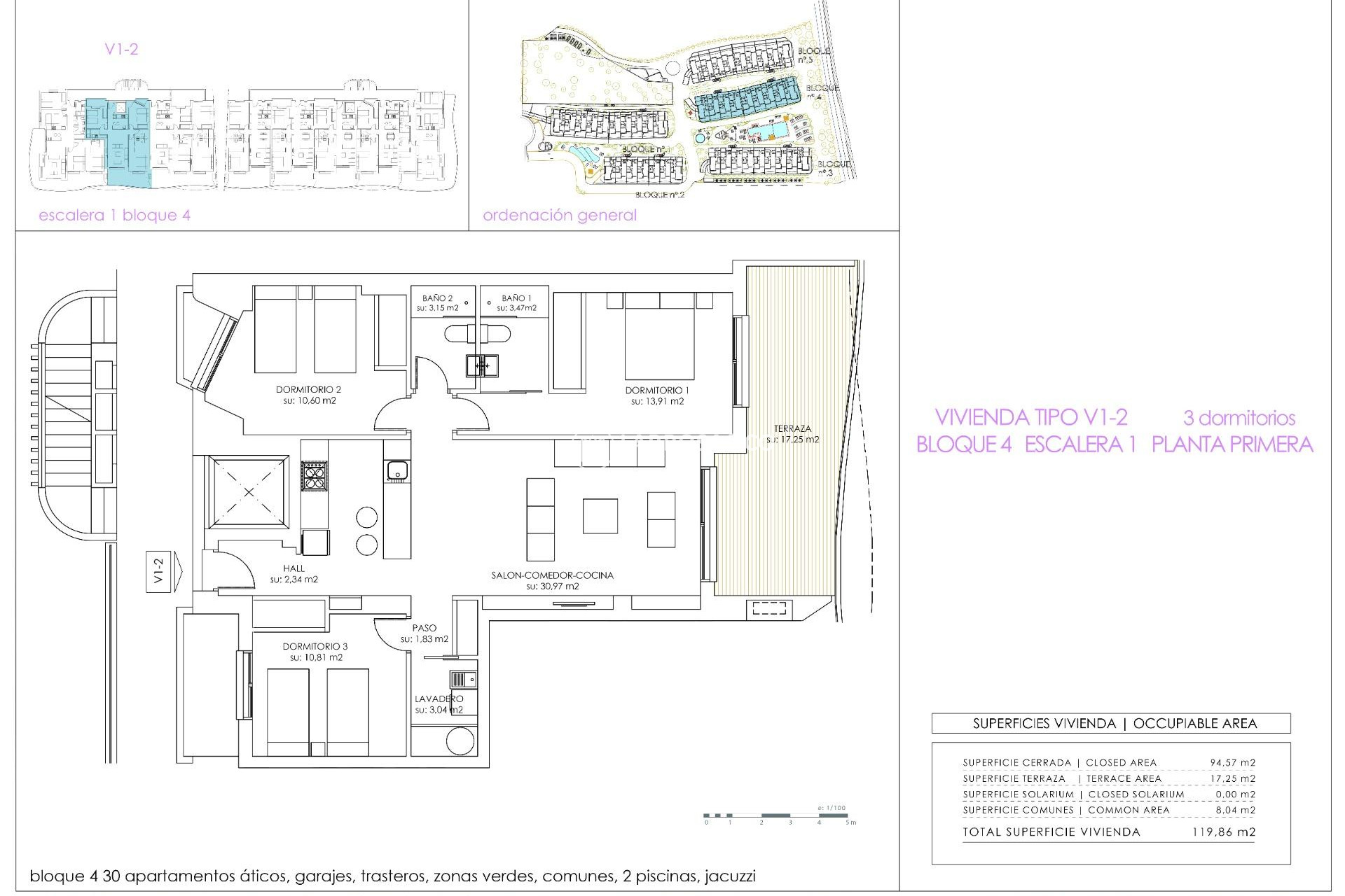
  • Metros

    94m2
  • Dormitorios

    3
  • Baños

    2
  • Piscina

Habitaciones Habitaciones:

3

Baños Baños:

2

Construidos Construidos:

94m2

Piscina Piscina:

Communal Pool
Gated
Number of Parking Spaces: 1
Near Trees
Near Schools
Air Conditioning: Pre-Installed
Double Bedrooms: 3
Near Commercial Center
Near Bus Route
Elevator/Lift
Location: Coastal, Urbanisation
Terrace: 17 Msq.
Parking - Space
Beach: 500 Meters
Useable Build Space: 84 Msq.
Storage / Trastero

Descripción

Mapa

Larrosa&co

Realiza una consulta

Responsable del tratamiento: Proiectum 2015, SL, Finalidad del tratamiento: Gestión y control de los servicios ofrecidos a través de la página Web de Servicios inmobiliarios, Envío de información a traves de newsletter y otros, Legitimación: Por consentimiento, Destinatarios: No se cederan los datos, salvo para elaborar contabilidad, Derechos de las personas interesadas: Acceder, rectificar y suprimir los datos, solicitar la portabilidad de los mismos, oponerse altratamiento y solicitar la limitación de éste, Procedencia de los datos: El Propio interesado, Información Adicional: Puede consultarse la información adicional y detallada sobre protección de datos Aquí.
WhatsApp