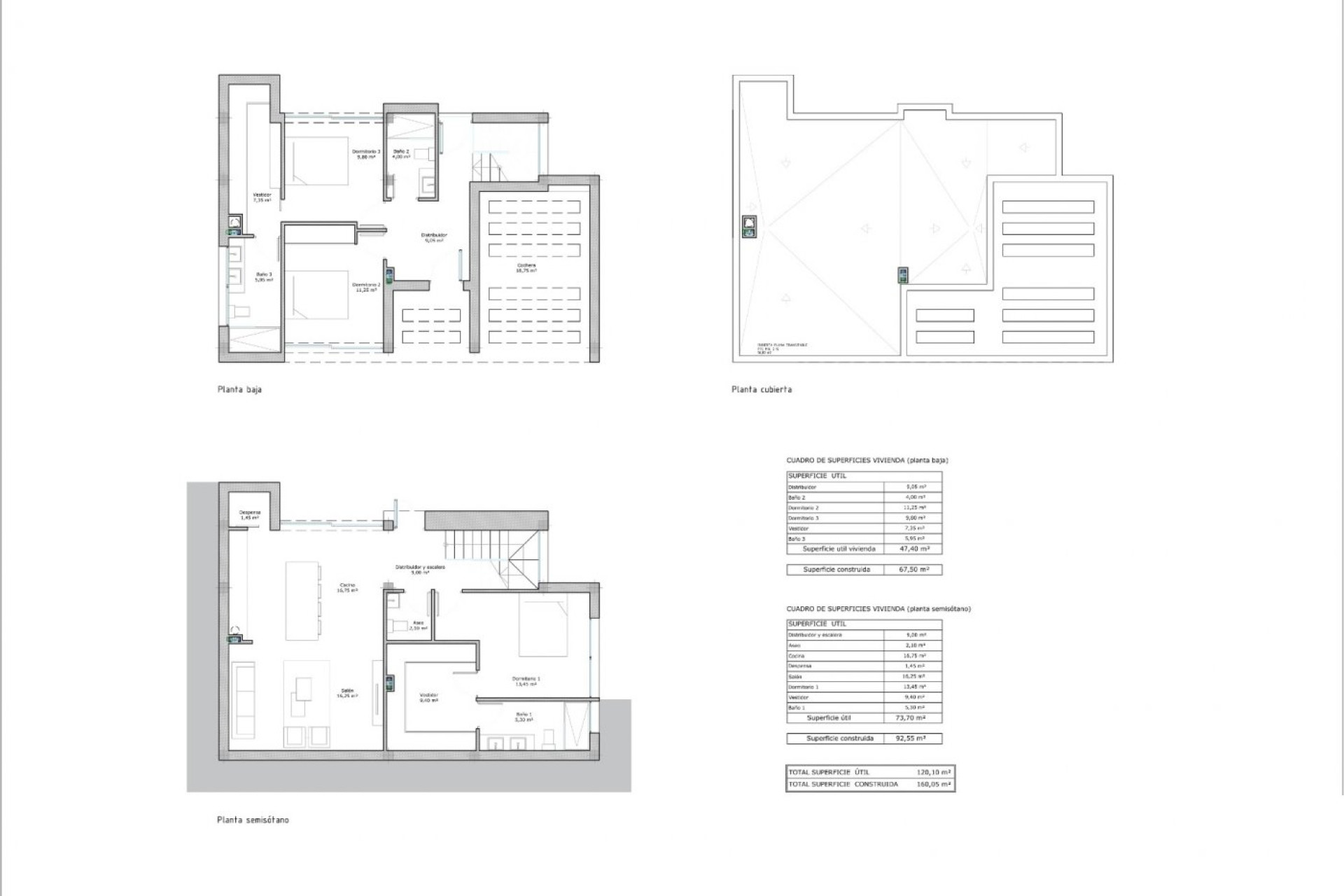
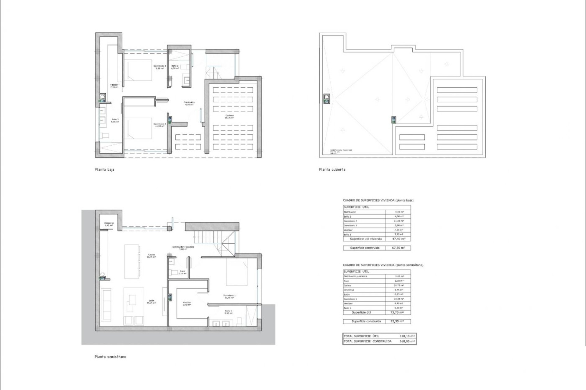
Застроенная площадь
Участок
Спальни
Ванные комнаты
Бассейн
3
2
146m2
365m2
Да
НОВЫЕ ВИЛЛЫ В ФОРТУНЕ Новые виллы в Фортуне, Мурсия. Независимая двухэтажная вилла с 3 спальнями, 2 ванными комнатами, 2 гардеробными, кухней открытого плана с гостиной, гаражом, частным садом с бассейном. Город Фортуна находится менее чем в 3 км, где можно совершать ежедневные покупки, а город Мурсия - в 25 км, где есть широкий выбор гастрономических и развлекательных заведений. Климат на Коста Калида, который часто считается лучшим в Европе, позволяет вести очень общительный и здоровый образ жизни на свежем воздухе, отмеченный фантастическими спортивными и развлекательными сооружениями, с захватывающими и космополитическими туристическими городами, которые выделяются предоставлением услуг высшего класса, некоторые из них эксклюзивные, считающиеся настоящей роскошью. На Коста Калида Мурсия более 300 солнечных дней в году. Помимо полей для гольфа и пристаней для яхт, которыми вы можете наслаждаться на всем побережье, этот район также предлагает возможность катания на лыжах в близлежащей Сьерра-Неваде, рае для любителей зимних видов спорта, с прекрасными природными ландшафтами. Возможность насладиться всеми видами культурных и развлекательных предложений близлежащих столиц, таких как Мурсия и Картахена. Райский уголок с прекрасным сообщением со всей Европой. Аэропорты Аликанте-Эльче и Мурсия-Корвера расположены в часе езды.