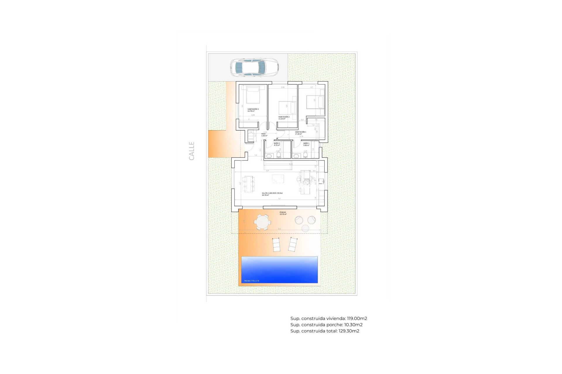
Застроенная площадь
Участок
Спальни
Ванные комнаты
Бассейн
3
2
129m2
603m2
Да
НОВЫЕ ВИЛЛЫ В МОНФОРТЕ-ДЕЛЬ-СИД Новые виллы в Монфорте-дель-Сид, с полем для гольфа всего в 3 минутах от дома и прямо рядом с городами Аликанте и Эльче, где вы найдете широкий спектр культуры, гастрономии, развлечений и, конечно, побережье. Золотые песчаные пляжи Средиземного моря всего в шаге от вашего нового дома, пространство, где вы можете наслаждаться днями солнца и моря в любое время. Виллы расположены в 3 минутах от спортивного центра гольф-поля Alenda Golf, что делает их идеальным местом для того, чтобы наслаждаться тишиной в спокойной урбанизации, но иметь все услуги рядом с домом (всего в 12 минутах езды от аэропорта Аликанте-Эльче). Урбанизация представляет собой сообщество, которое объединяет в себе лучшее из современной жизни и спокойствие природной среды (без коммунальных платежей). Откройте для себя элегантность и комфорт этой прекрасной независимой виллы площадью 108 м2 или 128 м2 (возможно два варианта размера дома), разработанной, чтобы предложить вам исключительный образ жизни, все на первом этаже. Расположенная в престижной урбанизации, эта недвижимость подарит вам уникальный и качественный опыт жизни. На участках площадью от 618 м2 вы найдете достаточно места, чтобы наслаждаться как внутренним, так и внешним миром. Наслаждайтесь уединением, которое предлагает эта независимая вилла, где вы можете расслабиться в собственном саду, создать оазис спокойствия или даже добавить бассейн, чтобы наслаждаться теплыми летними днями. Дом разделен на две большие зоны: Дневная зона: Здесь находится просторная гостиная-столовая с открытой кухней офисного типа (кухонная мебель входит в комплект), которая через два больших окна соединяется с большим современным крыльцом, выходящим в сад на открытом воздухе и, почему бы и нет... в бассейн. Свет заливает каждый уголок благодаря большим окнам в гостиной, которые выходят на крыльцо - современное и функциональное пространство, которое приглашает вас в полной мере насладиться отдыхом на свежем воздухе. Представьте, как вы будете проводить время с семьей и друзьями в окружении безмятежной и естественной природы. В качестве дополнительного пространства здесь есть прачечная, стратегически расположенная в распределительной части дома, куда легко добраться из любой точки дома. Ночная зона или зона отдыха: В этой зоне находятся 3 спальни. В главной спальне есть большая гардеробная и ванная комната. Кроме того, вторая ванная комната обслуживает остальные спальни и жилые помещения. Здесь вы найдете не только жилой комплекс, но и место, где природа и элегантность переплетаются, чтобы обеспечить вам непревзойденный стиль жизни. Если вы хотите создать постоянное место жительства, наслаждаться отдыхом или инвестировать в свое будущее, эта вилла идеально подходит для вас. Частная урбанизация недалеко от основных городов провинции Аликанте, в 15 минутах езды от Эльче и Аликанте, а также аэропорта и лучших пляжей. Комплекс расположен в тихом месте недалеко от поля для гольфа Alenda в Монфорте-дель-Сид.