Застроенная площадь
Участок
Спальни
Ванные комнаты
Бассейн
4
3
208m2
400m2
Да
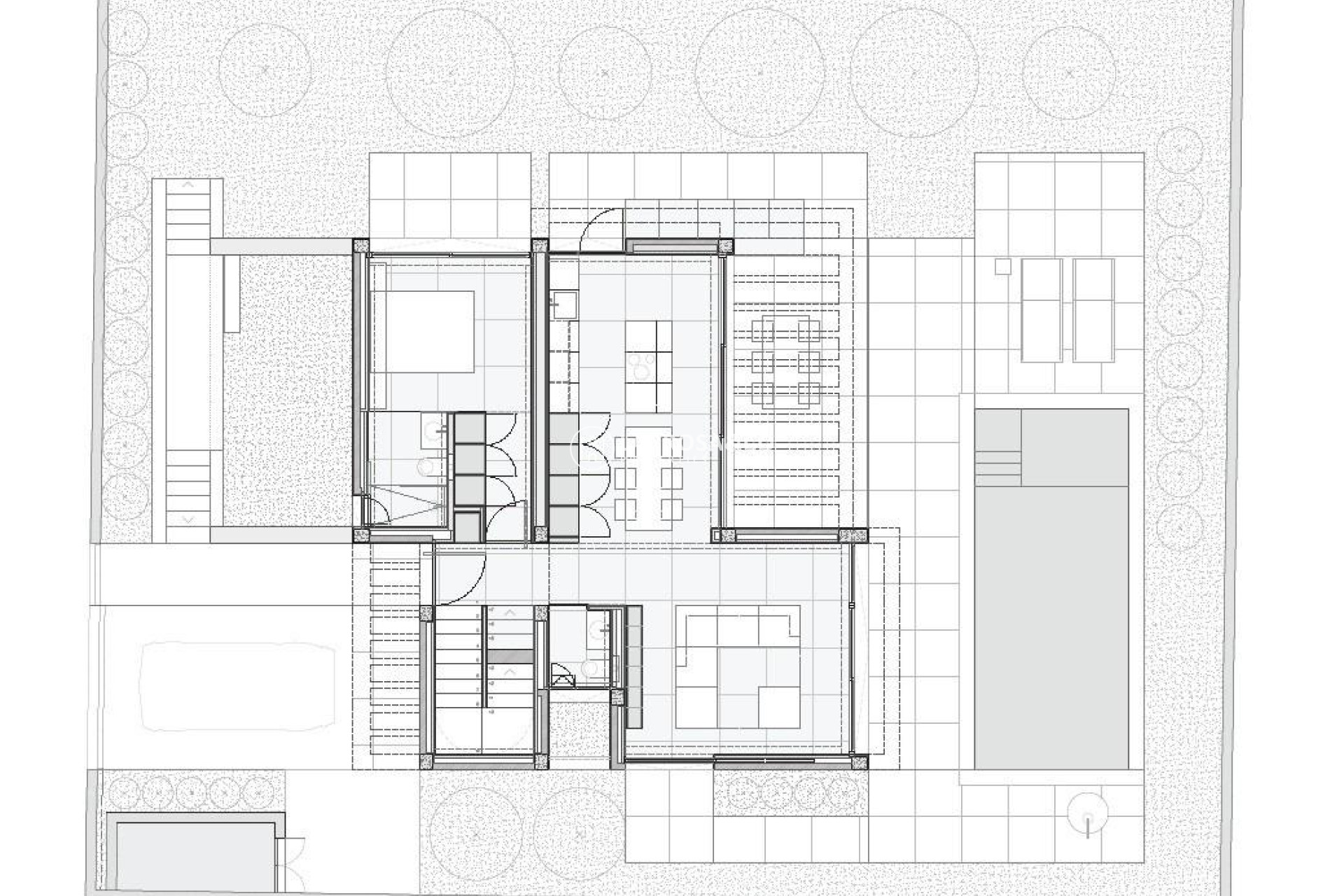
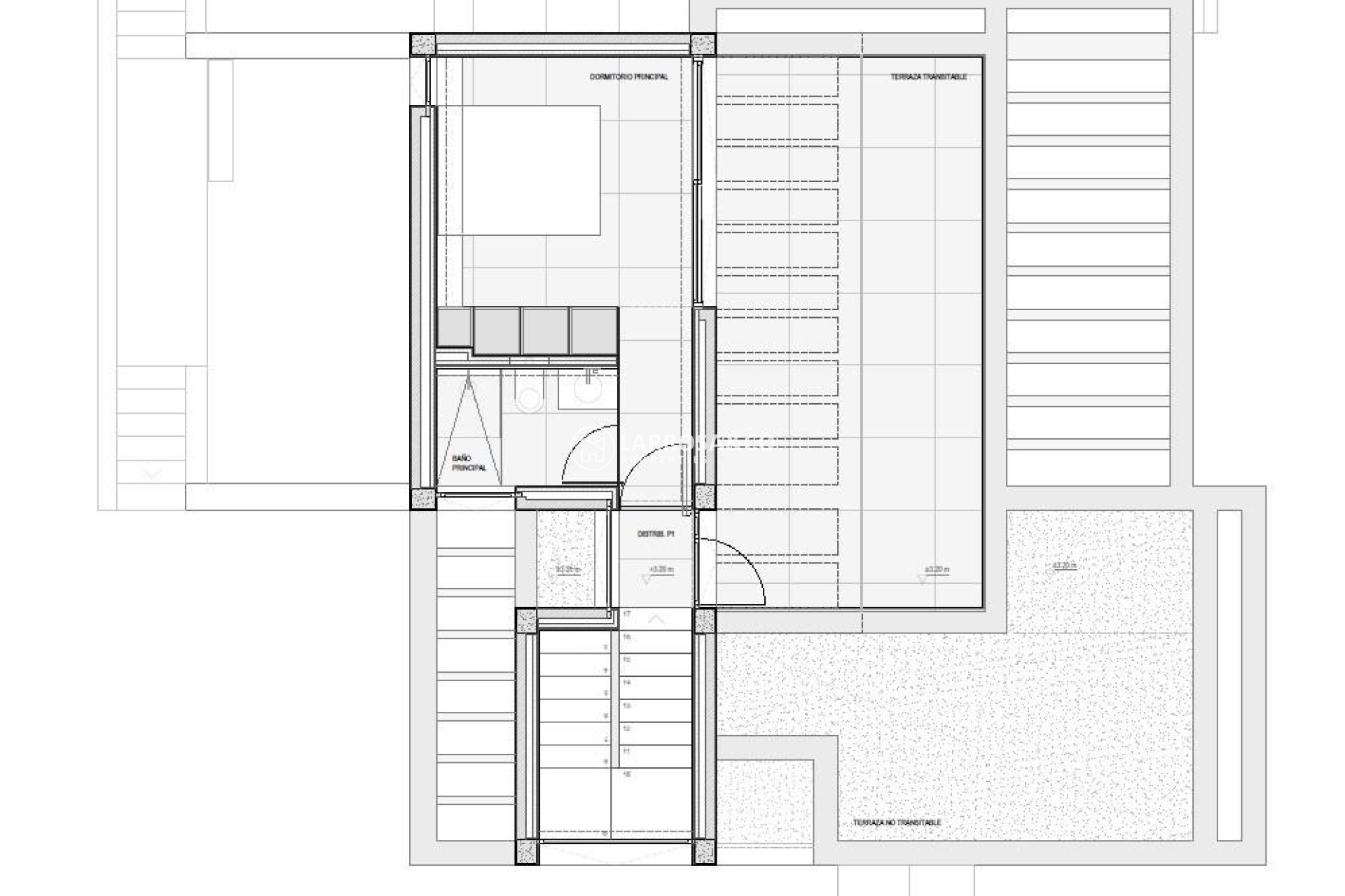
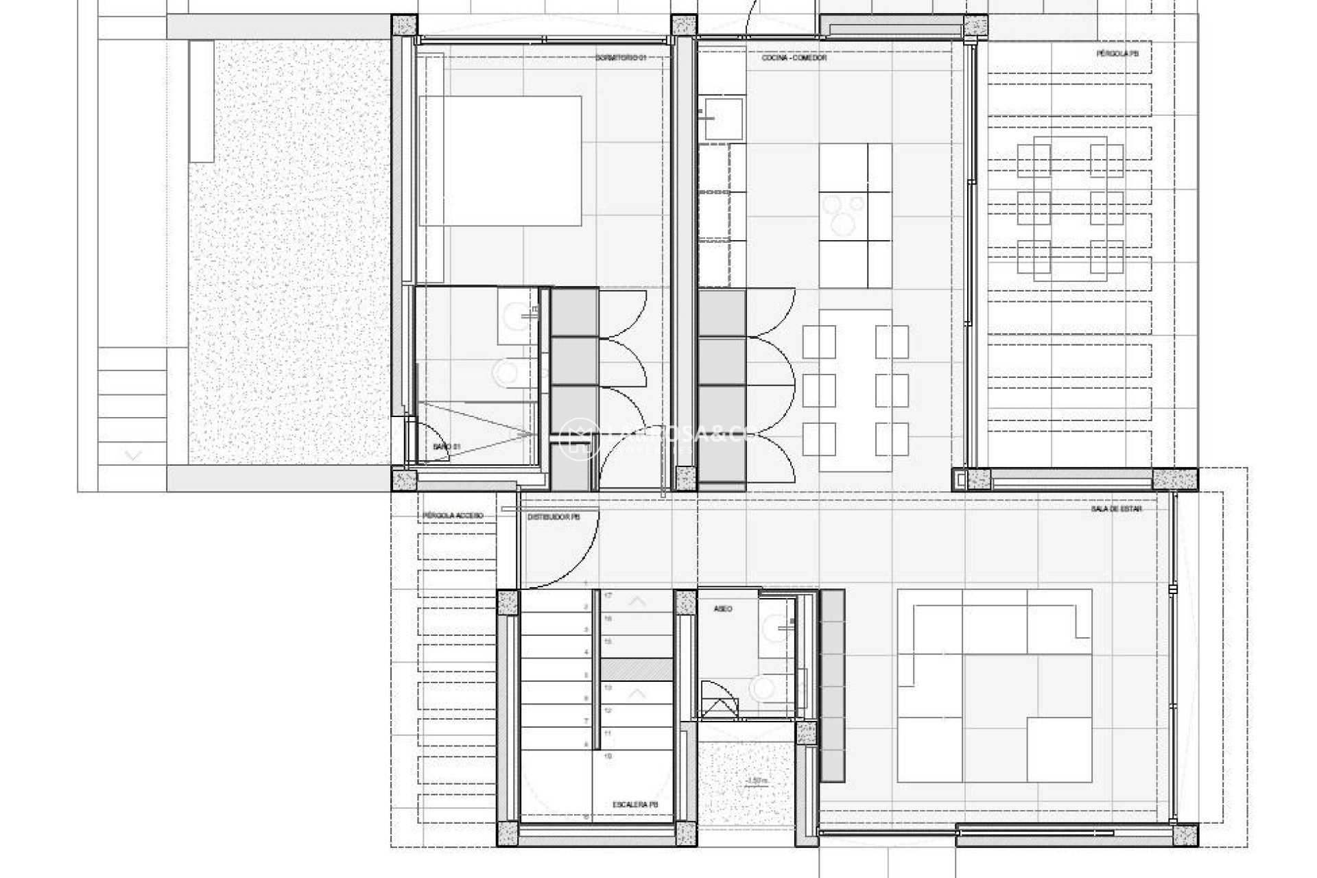
Новая роскошная вилла с видом на море в Ла Альберка Полоп Современный дизайн в тихом горном окружении Эта исключительная новая вилла расположена в Ла Альберка, тихом жилом районе в горах Полопа. Окруженная лесом и природой, вилла предлагает панорамный вид на Средиземное море, горы и исторический город Полоп. Вилла, спроектированная с вертикальной архитектурной элегантностью, сочетает в себе уединение, функциональность и плавный переход между внутренним и внешним пространством. Полоп — очаровательная деревня на побережье Коста-Бланка, известная своей традиционной атмосферой и природной красотой. Вилла находится недалеко от всех удобств Ла-Нучи, включая магазины, рестораны, спортивные центры и школы. Пляжи и оживленные прибрежные города, такие как Бенидорм и Альтеа, находятся всего в 15 минутах езды. Тщательно продуманная планировка на трех уровнях На первом этаже вас встречает прихожая со встроенным шкафом и гостевым туалетом. На этом уровне находится одна спальня с ванной комнатой и подъемными окнами от пола до потолка, выходящими на частную боковую террасу. Светлая открытая гостиная и столовая напрямую соединяются с террасой, покрытой перголой, и частным бассейном с морской водой, создавая гармоничный стиль жизни внутри и снаружи дома. Верхний этаж предназначен исключительно для главной спальни. Этот частный уровень предлагает спальню с ванной комнатой и выходом на впечатляющую террасу площадью 40 м2 с захватывающим панорамным видом на море и горы, обеспечивая максимальную конфиденциальность и комфорт. На цокольном этаже расположены две дополнительные спальни с большими окнами, выходящими на красиво оформленный заглубленный двор, который наполняет пространство естественным светом. Общая ванная комната, полностью оборудованная прачечная с техникой Haier и две просторные технические и кладовые комнаты дополняют этот этаж. Премиум-оснащение и энергоэффективность Вилла включает в себя высококачественную отделку и передовые системы, такие как: Центральная кухня с островком и встроенной бытовой техникой BOSCH Столешницы из натурального камня внутри и снаружи Панорамные окна с солнцезащитным армированным стеклом Аэротермальная система кондиционирования Mitsubishi Предварительная установка подогрева полов Класс энергоэффективности A Предварительная установка системы «умный дом» Частная парковка на два автомобиля Ландшафтный средиземноморский сад с автоматической системой полива и элегантный внутренний двор на нижнем уровне создают атмосферу уединения и релаксации. Крыша подготовлена для установки солнечных панелей. Отличное расположение и расстояния Центр Полопа 2 км Ла-Нусия 4 км Пляжи Бенидорма 12 км Альтеа 10 км Villaitana Golf 14 км Аэропорт Аликанте 65 км Откройте для себя свой частный рай в Полопе Эта современная вилла с видом на море предлагает дизайн, уединение и комфорт в одном из самых привлекательных природных уголков Коста-Бланки. Свяжитесь с нами сегодня, чтобы договориться о частном просмотре и обеспечить себе новый дом в Ла Альберка Полоп.