Застроенная площадь
Ванные комнаты
Бассейн
1
44m2
Да
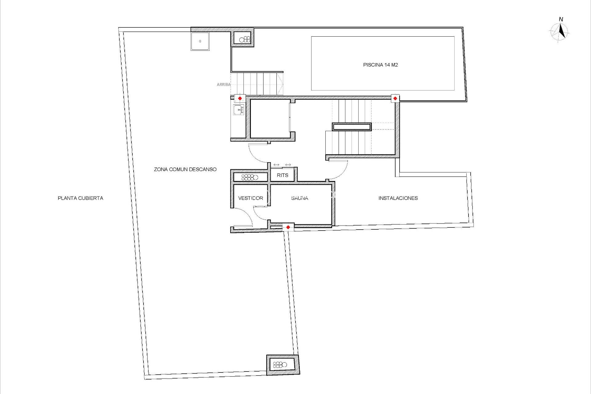
Новые апартаменты в Торревьехе, всего в 600 метрах от пляжа Плайя-дель-Кура Выгодное расположение в центре Торревьехи Откройте для себя эти новые апартаменты и пентхаусы в одном из самых востребованных районов Торревьехи, всего в 600 метрах от пляжа Плайя-дель-Кура и в 400 метрах от набережной. Расположенный в центре города, этот оживленный район предлагает все необходимые удобства в шаговой доступности, включая супермаркеты, магазины, рестораны, кафе и общественный транспорт. Торревьеха — известный прибрежный город на побережье Коста-Бланка, славящийся своим мягким средиземноморским климатом, оживленной атмосферой и круглогодичным морским образом жизни. Современные апартаменты с просторной планировкой Этот эксклюзивный новый комплекс состоит всего из 14 апартаментов и пентхаусов, включая студии и апартаменты с 1 или 2 спальнями, спроектированные с учетом комфорта, функциональности и современного стиля. Все дома имеют открытую кухню, соединенную с гостиной-столовой, оборудованную бытовой техникой, что создает светлые и уютные интерьеры. Спальни имеют встроенные шкафы, а ванные комнаты полностью оборудованы мебелью, зеркалами, полами с подогревом и душевыми перегородками. Качественная отделка и энергоэффективные характеристики Квартиры построены с использованием высококачественных материалов и с упором на энергоэффективность. Наружные алюминиевые столярные изделия включают технологию терморазрыва и двойное остекление для тепло- и звукоизоляции. Моторизованные жалюзи добавляют комфорта и безопасности. Каждая квартира имеет предварительную установку для кондиционирования воздуха и канального отопления, усиленные входные двери, комплект освещения и белые лакированные межкомнатные двери. Горячая вода производится аэротермальной системой, что снижает потребление энергии и повышает экологичность. Солярий на крыше с общим бассейном Жители могут пользоваться эксклюзивным солярием на крыше с общим бассейном, барбекю, сауной и зоной для загара с шезлонгами, куда можно подняться на лифте или по лестнице. Эта частная зона идеально подходит для отдыха, загара и наслаждения панорамным видом на город. Она предлагает умиротворенное уединение над оживленными улицами Торревьехи и значительно повышает ценность комплекса. Образ жизни и окрестности Торревьехи Торревьеха известна своей обширной береговой линией, песчаными пляжами и знаменитыми солончаками. Природный парк Лагунас-де-ла-Мата-и-Торревьеха находится примерно в 5 км и предлагает пешеходные тропы и уникальные пейзажи. Несколько полей для гольфа, таких как Villamartin Golf и Las Colinas Golf, находятся на расстоянии от 12 до 18 км. Пристань для яхт и порт Торревьехи находятся примерно в 1 км. Аэропорт Аликанте находится примерно в 45 км, а международный аэропорт Мурсии — примерно в 65 км, оба с отличным европейским сообщением. Ваш дом на побережье ждет вас Не упустите возможность приобрести современную, недавно построенную квартиру недалеко от пляжа в Торревьехе. Свяжитесь с нами сегодня, чтобы получить дополнительную информацию или договориться о частном просмотре.