Застроенная площадь
Спальни
Ванные комнаты
Бассейн
2
2
129m2
Да
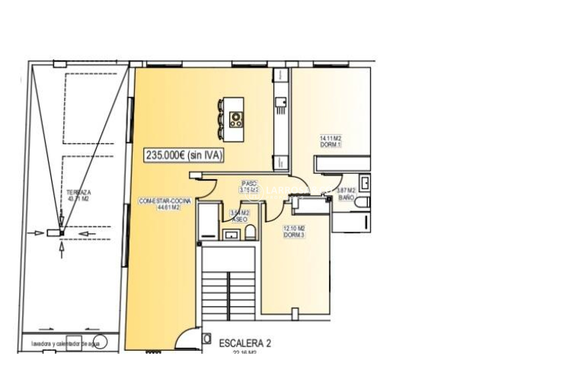
Современные новостройки в центре Сан-Мигель-де-Салинас Современная жизнь в здоровой средиземноморской среде Расположенный в очаровательном городке Сан-Мигель-де-Салинас, всего в 10 км от Средиземного моря, этот новый жилой комплекс предлагает идеальный баланс между современным комфортом и природным окружением. Этот район хорошо известен своими соляными озерами и исключительным микроклиматом, считающимся одним из самых здоровых в Европе. Этот тихий, но оживленный городок позволяет жителям наслаждаться аутентичным средиземноморским образом жизни, находясь в нескольких минутах ходьбы от магазинов, ресторанов, супермаркетов и всех необходимых услуг. Сан-Мигель-де-Салинас расположен немного вглубь суши на юге Коста-Бланки, предлагая открытые виды, свежий воздух и легкий доступ к пляжам, полям для гольфа и торговым районам. Стильные апартаменты, спроектированные для комфорта и эффективности Проект состоит из двух современных зданий, разделенных ландшафтным общим садом. Всего доступно 56 современных апартаментов с 1, 2 или 3 спальнями, каждая из которых имеет собственную террасу. Каждый дом был спроектирован с учетом комфорта, эстетики и энергоэффективности, с использованием высококачественных материалов и современных систем изоляции. Каждый апартамент включает: Бронированная входная дверь Ванные комнаты с туалетными столиками Предварительная установка канального кондиционера Энергетический сертификат класса A Планировка и ориентация домов обеспечивают естественное освещение в течение всего дня, создавая светлые и уютные интерьеры, идеально подходящие как для постоянного проживания, так и для отдыха. Исключительные общие зоны для отдыха и социальной жизни Общая зона на первом этаже спроектирована как социальный центр комплекса, окруженный ландшафтными садами, зонами для отдыха, парковкой для велосипедов и детской игровой площадкой. Это идеальное место для встреч жителей всех возрастов. На крыше вас ждет впечатляющая зона отдыха площадью 350 м2. Это пространство включает в себя бассейн площадью 70 м2 с отдельной детской зоной для купания, перголы, шезлонги и тенистые зоны, позволяющие жильцам расслабиться, наслаждаясь панорамным видом. На крышу легко добраться на одном из трех лифтов, а для дополнительного комфорта здесь есть санузлы. Отличное расположение рядом с ключевыми достопримечательностями Средиземноморские пляжи 10 км Торговый центр Zenia Boulevard 9 км Villamartin Golf 6 км Las Colinas Golf 8 км Пристань для яхт Торревьеха 12 км Аэропорт Аликанте 60 км Аэропорт Мурсия Корвера 55 км Умная инвестиция на юге Коста-Бланки Этот жилой комплекс сочетает в себе современную архитектуру, качественную отделку и выгодное центральное расположение, что делает его отличным выбором для проживания, отдыха или инвестиций в аренду. Свяжитесь с нами сегодня, чтобы получить дополнительную информацию или договориться о посещении этих современных апартаментов в Сан-Мигель-де-Салинас.