Застроенная площадь
Участок
Спальни
Ванные комнаты
Бассейн
2
2
81m2
53m2
Да
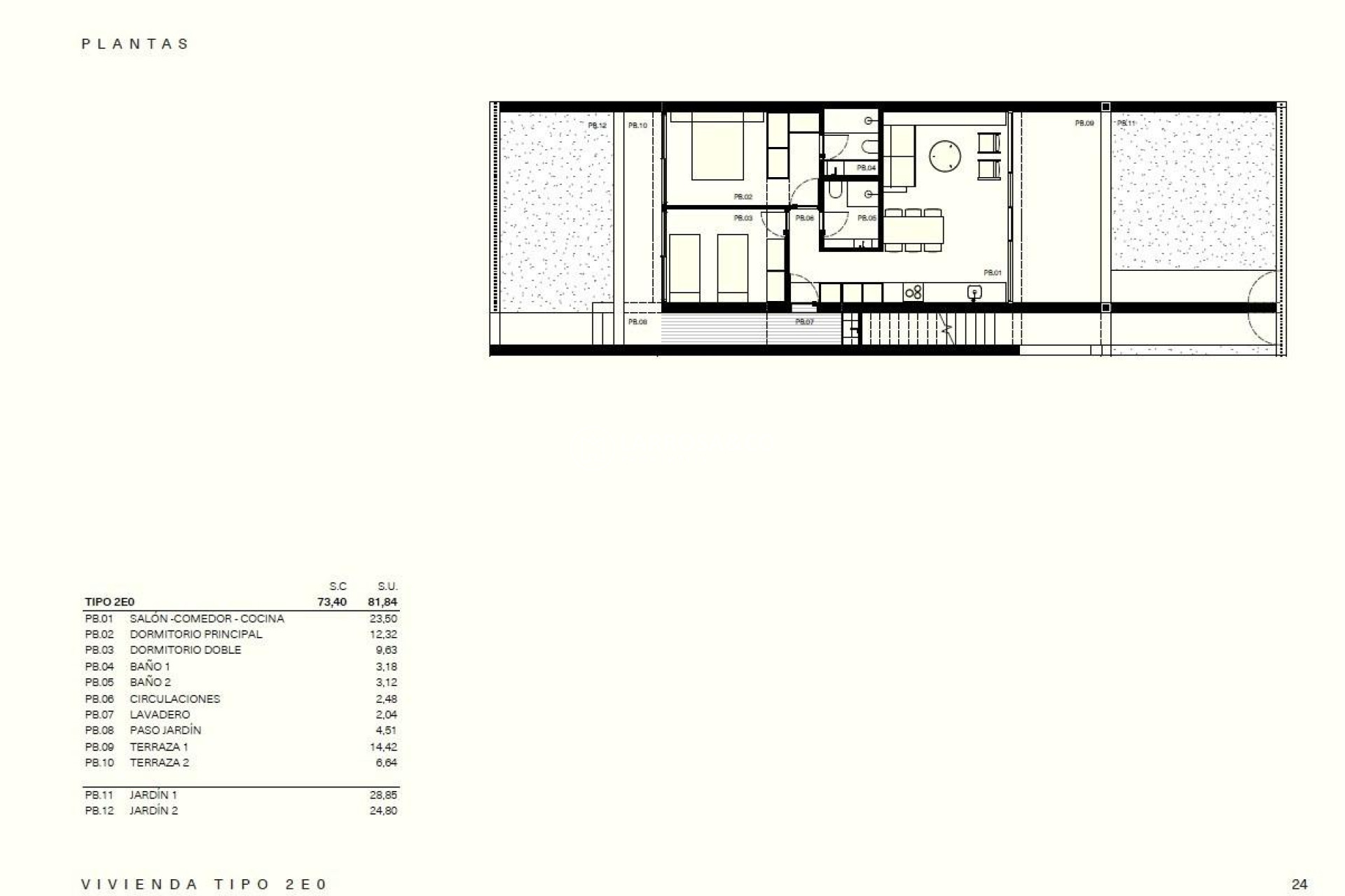
Новые жилые апартаменты в Лос-Бальконес, Торревьеха Современные дома в престижном жилом районе Откройте для себя этот привлекательный новый жилой комплекс, расположенный в Лос-Бальконес, одном из самых популярных и устоявшихся районов на окраине Торревьехи. Расположенный в тихом месте с отличным доступом ко всем необходимым услугам, этот комплекс находится всего в 4 км от песчаных пляжей Коста-Бланки. Лос-Бальконес известен своей спокойной атмосферой, широкими улицами, зелеными насаждениями и близостью к больницам, супермаркетам, ресторанам и торговым центрам, что делает его идеальным местом для круглогодичного проживания или отдыха. Современные апартаменты с частными открытыми пространствами Комплекс состоит из 52 современных апартаментов, построенных на общей площади 6700 м2. Каждая недвижимость включает в себя частное парковочное место и кладовую в подземном помещении. Квартиры имеют 2 или 3 спальни и 2 ванные комнаты, одна из которых примыкает к спальне. Покупатели могут выбрать между квартирами на первом этаже с частным садом или квартирами на верхних этажах с просторной террасой и частным солярием. Эти планировки разработаны для максимального использования естественного освещения и обеспечения комфортных жилых помещений внутри и снаружи, чтобы наслаждаться средиземноморским климатом круглый год. Общие зоны, созданные для отдыха Проект состоит из четырех блоков, окружающих большую центральную общую зону. Это зеленое сердце комплекса включает в себя бассейн с отдельной зоной для детей и красивые ландшафтные сады. Эти общие пространства идеально подходят для отдыха, общения и семейного времяпрепровождения в безопасной и дружественной обстановке. Качественные характеристики и энергоэффективный дизайн Каждая квартира построена в соответствии с современными стандартами и включает в себя предварительную установку канального кондиционирования, аэротермальную систему горячего водоснабжения для повышения энергоэффективности, наружное освещение и двойное остекление. Кухни полностью меблированы и предлагают функциональное и стильное пространство для повседневной жизни. Эти характеристики обеспечивают высокий уровень комфорта, низкие затраты на обслуживание и снижение энергопотребления, делая дома практичными и экологичными. Отличное расположение рядом с пляжами и гольф-полями Los Balcones предлагает стратегическое расположение рядом со многими достопримечательностями. Пляжи Торревьехи находятся примерно в 4 км. Несколько известных гольф-полей, таких как Villamartin Golf, Las Ramblas Golf и Campoamor Golf, находятся в пределах 10-15 км. Университетская больница Торревьехи находится менее чем в 2 км, что добавляет удобства и спокойствия. Центр города Торревьеха находится примерно в 5 км от комплекса и связан с Los Balcones автобусным сообщением. Здесь вы найдете широкий выбор магазинов, ресторанов, культурных заведений и оживленную пристань для яхт. Международный аэропорт Аликанте расположен примерно в 42 км от комплекса, что обеспечивает удобное международное сообщение. Порт Торревьехи находится примерно в 6 км от комплекса. Идеально подходит для проживания или инвестиций Благодаря современному дизайну, отличным общим зонам и выгодному расположению рядом с пляжами, гольф-полями и услугами, этот новый жилой комплекс в Лос-Бальконес-Торревьеха идеально подходит для постоянного проживания, отдыха или инвестиций. Свяжитесь с нами сегодня, чтобы получить дополнительную информацию или договориться о просмотре этих новых квартир в Лос-Бальконес, Торревьеха.