Застроенная площадь
Участок
Спальни
Ванные комнаты
Бассейн
4
3
342m2
800m2
Да
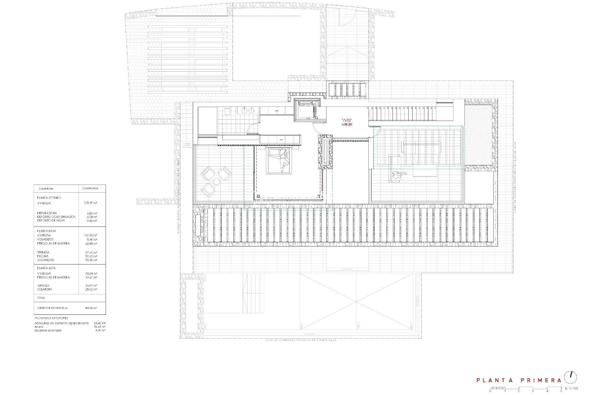
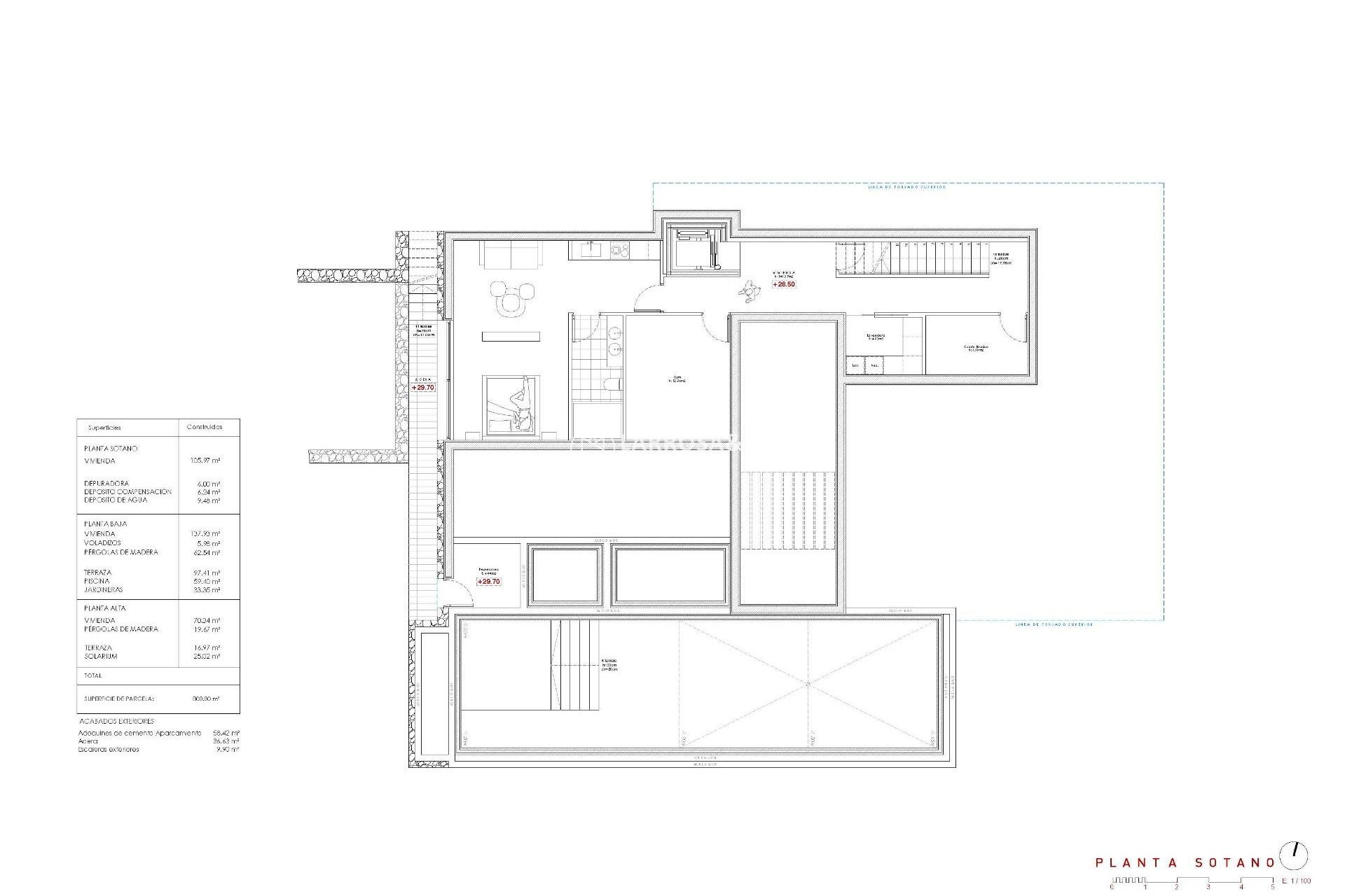
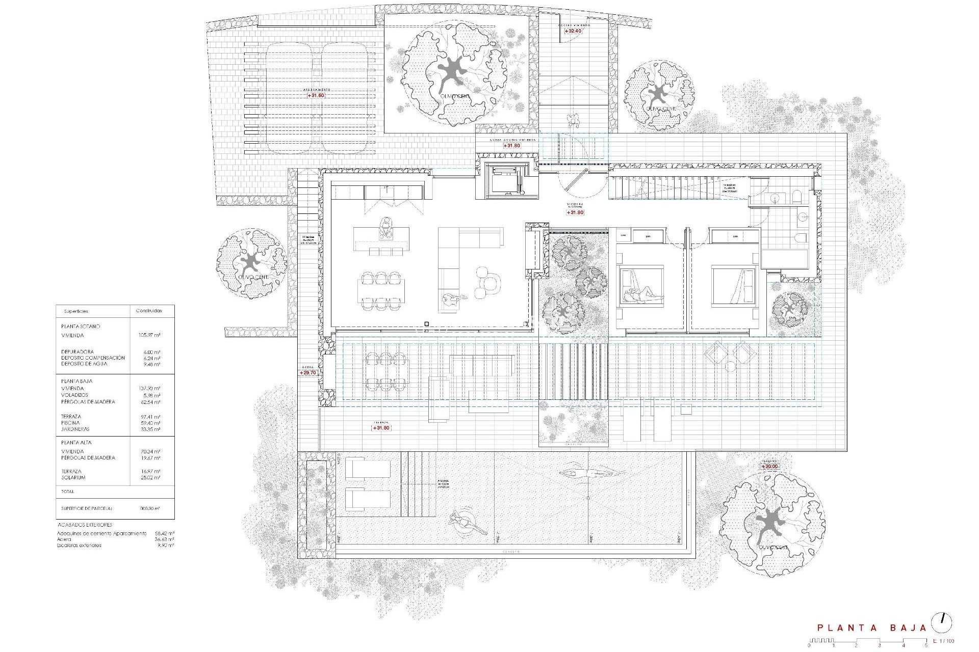
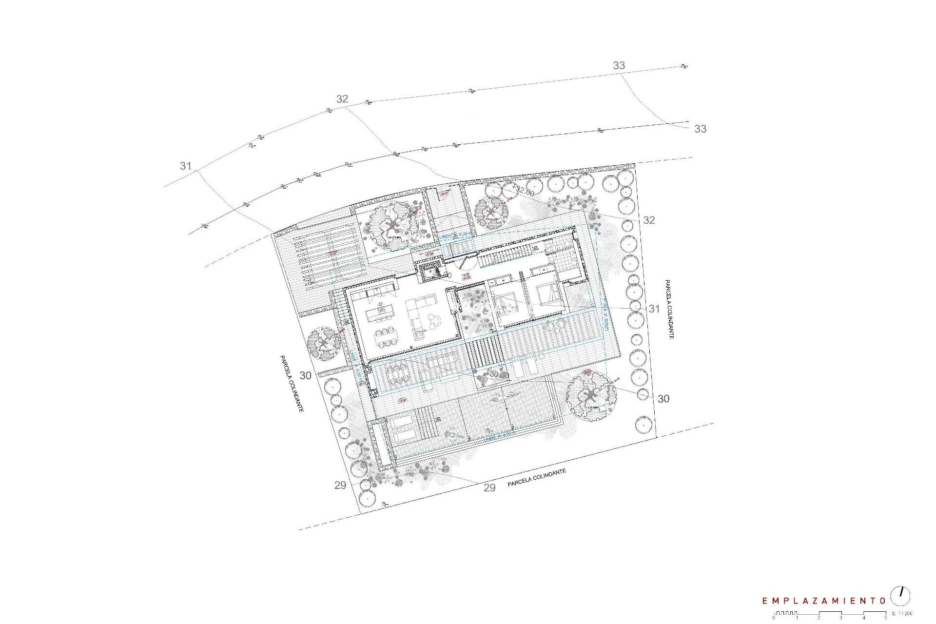
Современная вилла с панорамным видом на море в Ла-Фустера, Бенисса-Коста Эта эксклюзивная вилла новой постройки, спроектированная известным архитектором и построенная местным застройщиком с более чем 20-летним опытом, расположена на участке площадью 800 м² всего в нескольких шагах от пляжа Ла-Фустера. Сочетая в себе средиземноморское тепло и современную элегантность, архитектура виллы объединяет натуральный камень, дерево и мягкие нейтральные тона, гармонично вписываясь в прибрежный ландшафт. Общая площадь виллы составляет 716 м², распределенных на три уровня — подвал, первый этаж и второй этаж — и обеспечивает идеальный баланс между функциональностью, дизайном и комфортом. Подвал Нижний этаж площадью 105,97 м² спроектирован с учетом как практичности, так и досуга. Он включает в себя полностью оборудованный тренажерный зал, прачечную и технические помещения, с возможностью адаптации дополнительных пространств под винный погреб, кинотеатр или многофункциональный зал. На этом уровне также размещены система фильтрации бассейна и резервуары для воды, что обеспечивает эффективное управление всеми техническими установками. Первый этаж Основной уровень площадью 137,93 м² представляет собой светлую открытую планировку, которая отражает суть средиземноморского стиля жизни. Просторная гостиная, столовая и кухня открываются через большие окна от пола до потолка на главную террасу и бассейн-инфинити, обрамляя невероятные панорамные виды на море, которые определяют характер этого дома. Две спальни с двуспальными кроватями, полностью оборудованная ванная комната и гостевой туалет дополняют этот этаж, обеспечивая комфорт и функциональность. Снаружи деревянная пергола затеняет открытую гостиную и обеденную зону, окруженные пышными садами, солнечными террасами и пейзажным бассейном площадью 59,40 м², который визуально сливается с морем. Первый этаж Верхний уровень площадью 70,19 м² отведён под главную спальню — уединённое место с гардеробной, ванной комнатой и большой частной террасой с захватывающим видом на Средиземное море. Вторая спальня или кабинет дополняют этот этаж, который также имеет выход на солярий площадью 25,02 м², идеально подходящий для отдыха под солнцем и наслаждения спокойствием окружающей обстановки. Экстерьер и расположение Расположенная на тихой жилой улице, окруженной современными виллами, эта недвижимость имеет исключительное расположение всего в 3 минутах ходьбы от пляжа Ла Фустера (150 м), бара-ресторана Mandala Beach Bar & Restaurant и основных удобств, таких как супермаркеты и местные услуги. Эта вилла, спроектированная с акцентом на свет, пространство и плавный переход между внутренними и внешними помещениями, воплощает современный средиземноморский стиль жизни — элегантный, расслабленный и в полной гармонии с впечатляющими панорамными видами на море. Приобретите виллу своей мечты в Ла Фустера, Бенисса Коста, и насладитесь средиземноморским стилем жизни с захватывающими видами на море и непревзойденным комфортом.