Застроенная площадь
Участок
Спальни
Ванные комнаты
Бассейн
3
2
183m2
256m2
Да
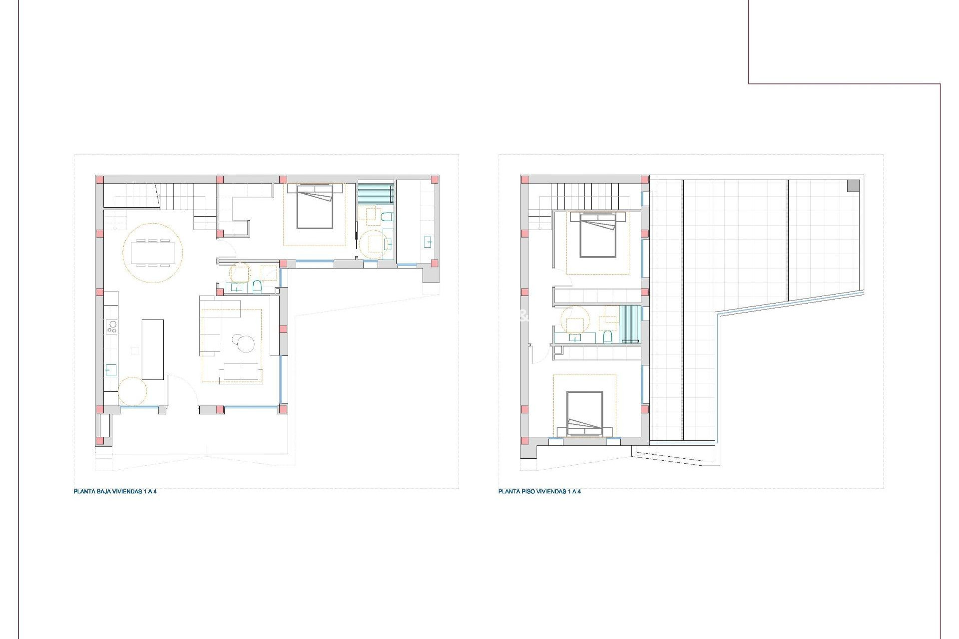
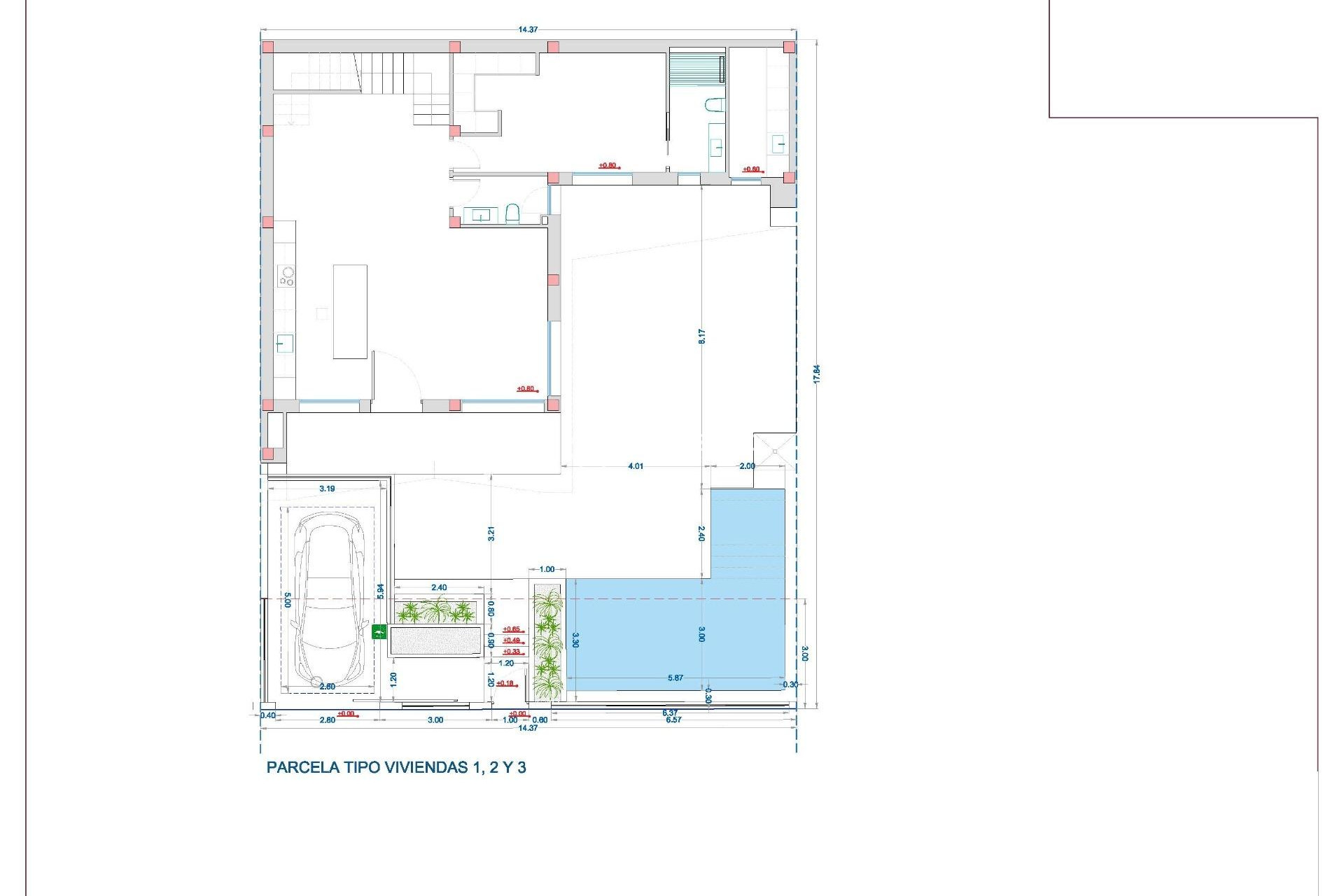
Современные виллы новой постройки в Долорес, Аликанте Современная жизнь в сердце Вега-Баха Откройте для себя этот эксклюзивный комплекс вилл новой постройки в Долорес, очаровательном городке в регионе Вега-Баха-дель-Сегура, к югу от Аликанте. Известный своим традиционным испанским характером и окруженный пышной природой, Долорес предлагает спокойный образ жизни, при этом все необходимые удобства находятся в шаговой доступности — магазины, рестораны, школы и местные услуги. Расположенный всего в 12 км от пляжей Ла-Марина и Гуардамар-дель-Сегура и с легким доступом к автомагистрали AP-7, этот жилой район имеет отличное транспортное сообщение с основными прибрежными городами Коста-Бланки. Элегантные современные виллы с частным бассейном Эти современные двухэтажные виллы были спроектированы с учетом комфорта, функциональности и стиля. На первом этаже вы найдете светлую кухню открытой планировки, соединенную с гостиной-столовой, с большими раздвижными дверями, выходящими прямо на террасу и частный сад с бассейном. На первом этаже также находится одна спальня с ванной комнатой, гостевой туалет и удобная открытая прачечная. На втором этаже расположены две дополнительные спальни, ванная комната и выход на большую открытую террасу площадью 60 м2, идеально подходящую для принятия солнечных ванн или отдыха, наслаждаясь средиземноморским климатом. Каждый дом имеет частную парковку на участке. Качественная отделка и современный комфорт Построенные из высококачественных материалов и с современным дизайном, эти виллы полностью оборудованы для круглогодичного проживания. Основные характеристики: Наружная столярка с термомостом Моторизованные жалюзи Система горячего водоснабжения, работающая на аэротермальной энергии Полностью установленная система канального кондиционирования воздуха Частный бассейн Частная парковка и ландшафтный сад Интерьеры сочетают в себе элегантность и функциональность, максимально используя естественное освещение и предлагая исключительную жилую среду с тесной связью между внутренними и внешними пространствами. Выгодное расположение рядом со всем Долорес имеет стратегическое расположение, обеспечивающее баланс между спокойствием и доступностью. Ключевые расстояния: Пляжи Ла-Марина и Гуардамар-дель-Сегура: 12 км Аэропорт Аликанте (Эльче-Эль-Альтет): 30 км (25 минут на машине) Аэропорт Мурсия-Корвера: 70 км (1 час на машине) Поля для гольфа: 15 км Город Аликанте: 40 км Живите средиземноморским образом жизни в Долорес Эти новые виллы в Долорес предлагают идеальное сочетание современного дизайна, комфорта и близости к побережью. Идеально подходящие как для постоянного проживания, так и для отдыха, они обеспечивают спокойный средиземноморский образ жизни в окружении природы и удобств. Свяжитесь с нами сегодня, чтобы договориться о просмотре и воплотить в жизнь свой дом мечты в Долорес.