Застроенная площадь
Спальни
Ванные комнаты
1
1
55m2
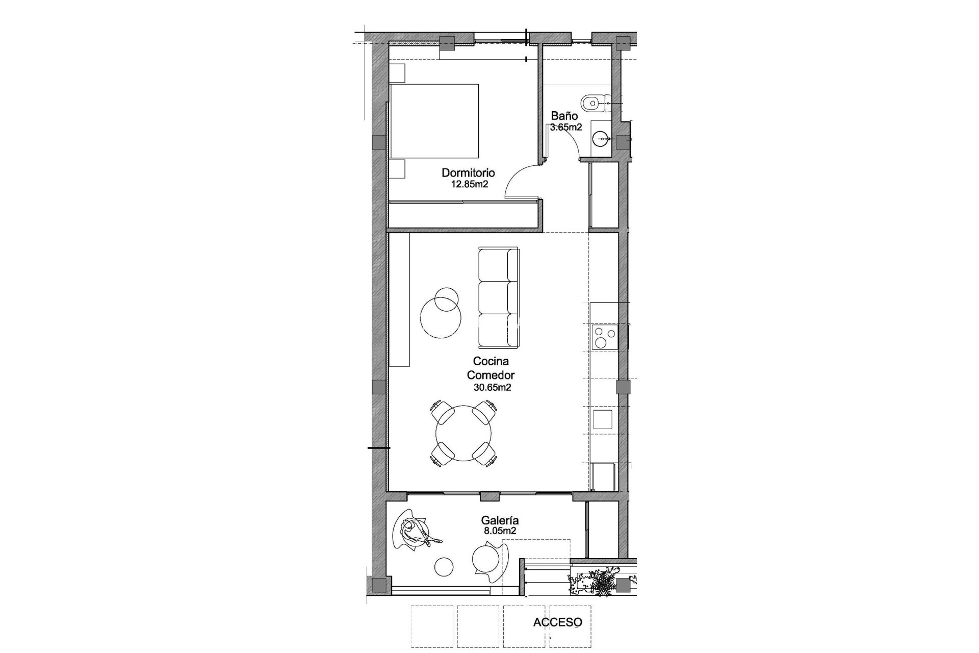
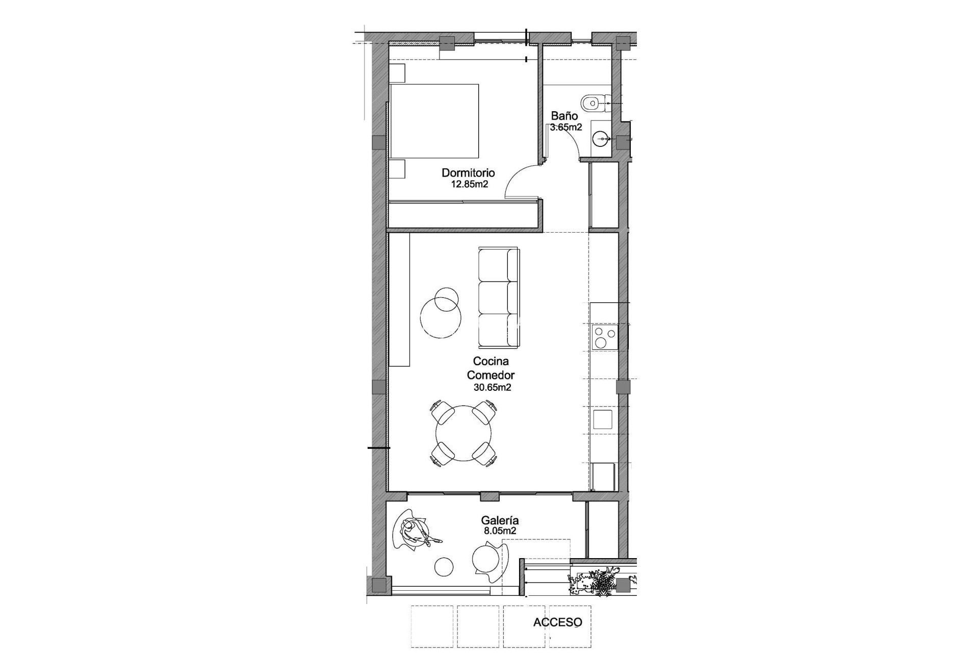
Современные новостройки всего в 150 м от моря в Торревьехе Эксклюзивный бутик-комплекс у пляжа Этот новый комплекс предлагает всего 3 современные квартиры в привилегированном месте, всего в 150 метрах от пляжа Лос Науфрагос в Торревьехе. Первоначально являясь частью коммерческого помещения, построенного в 1989 году, объект был полностью отремонтирован и преобразован в стильные дома с одной спальней и одной ванной комнатой, предназначенные для современной жизни на побережье. Современный дизайн и комфорт, готовый к заселению Каждая квартира была полностью отремонтирована с использованием высококачественных отделочных материалов и сдается полностью меблированной и оборудованной. Особенности включают: Открытая кухня с мебелью и бытовой техникой Дизайнерская мебель, освещение, шторы, телевизоры и декор Кондиционер с функцией охлаждения/обогрева в гостиной и спальне Ванная комната с мебелью, зеркалом и душевой перегородкой Передняя терраса с местом для стола и стульев Это готовое решение гарантирует, что вы сможете наслаждаться своим новым домом без хлопот по его меблировке и оборудованию. Сдача запланирована на февраль 2026 года, после получения лицензий и подключения коммунальных услуг, что делает его практически готовым к заселению. Выгодное центральное расположение в Торревьехе Эти апартаменты находятся в нескольких минутах ходьбы от моря и в 10 минутах от центра города, что делает их расположение непревзойденным. В радиусе 300 метров вы найдете рестораны, супермаркеты, аптеки, банки и остановки общественного транспорта. Пристань для яхт Торревьехи находится всего в 1 км, а такие важные объекты, как больница Торревьехи и торговый центр Las Habaneras, находятся в пределах легкой досягаемости. Легкий доступ к ключевым местам Пляж Лос-Науфрагос: 150 м Пристань для яхт Торревьехи: 1 км Поле для гольфа Вильямартин: 10 км Аэропорт Аликанте: 45 км Жизнь на берегу Средиземного моря Торревьеха — одно из самых привлекательных мест на побережье Коста-Бланка, известное своими песчаными пляжами, оживленной набережной и прекрасным климатом с более чем 300 солнечными днями в году. Если вы ищете постоянное место жительства, дом для отдыха или объект для инвестиций, этот бутиковый комплекс предлагает идеальный баланс комфорта, стиля и местоположения. Забронируйте свою квартиру на побережье сегодня Насладитесь современной жизнью в нескольких шагах от моря. Свяжитесь с нами сейчас, чтобы договориться о посещении и забронировать свой новый дом в Торревьехе, пока не стало слишком поздно.