Новостройка » Дом » La Romana » Batis
LARROSA LARROSA

Характеристики

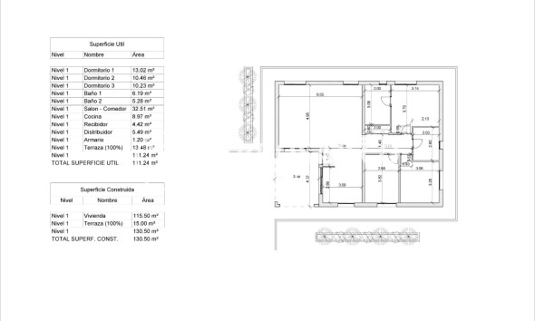
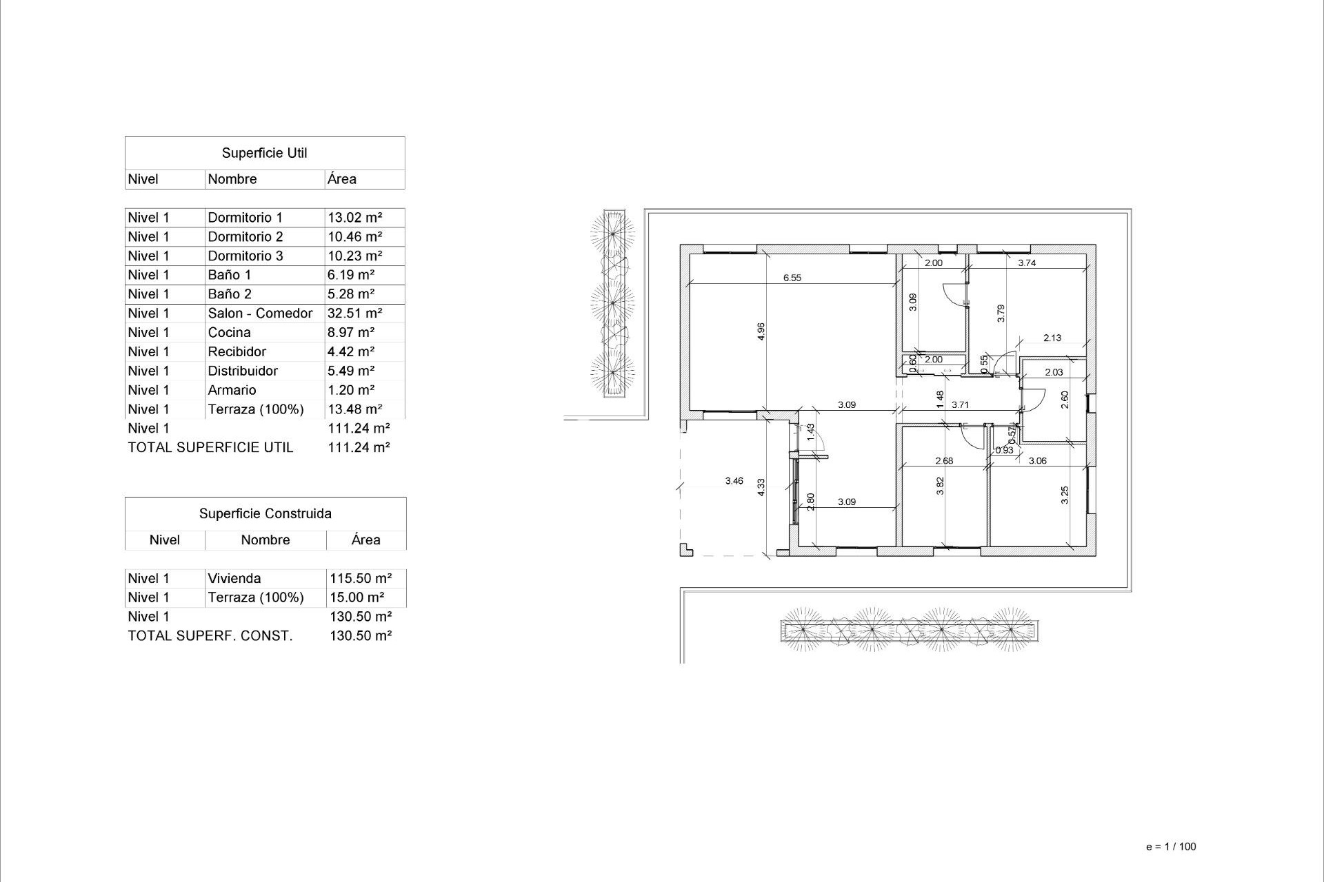
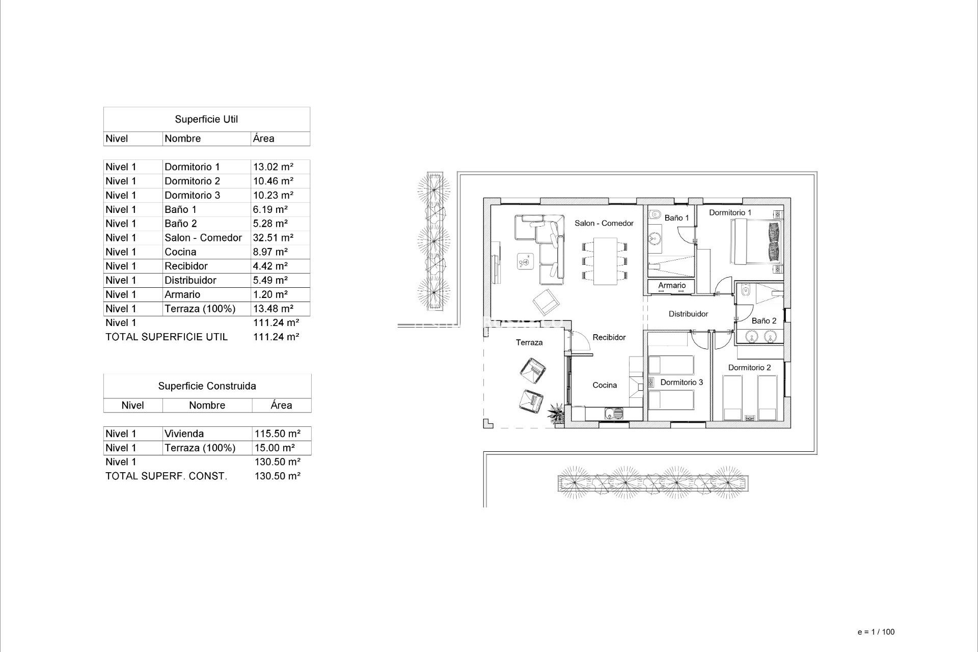
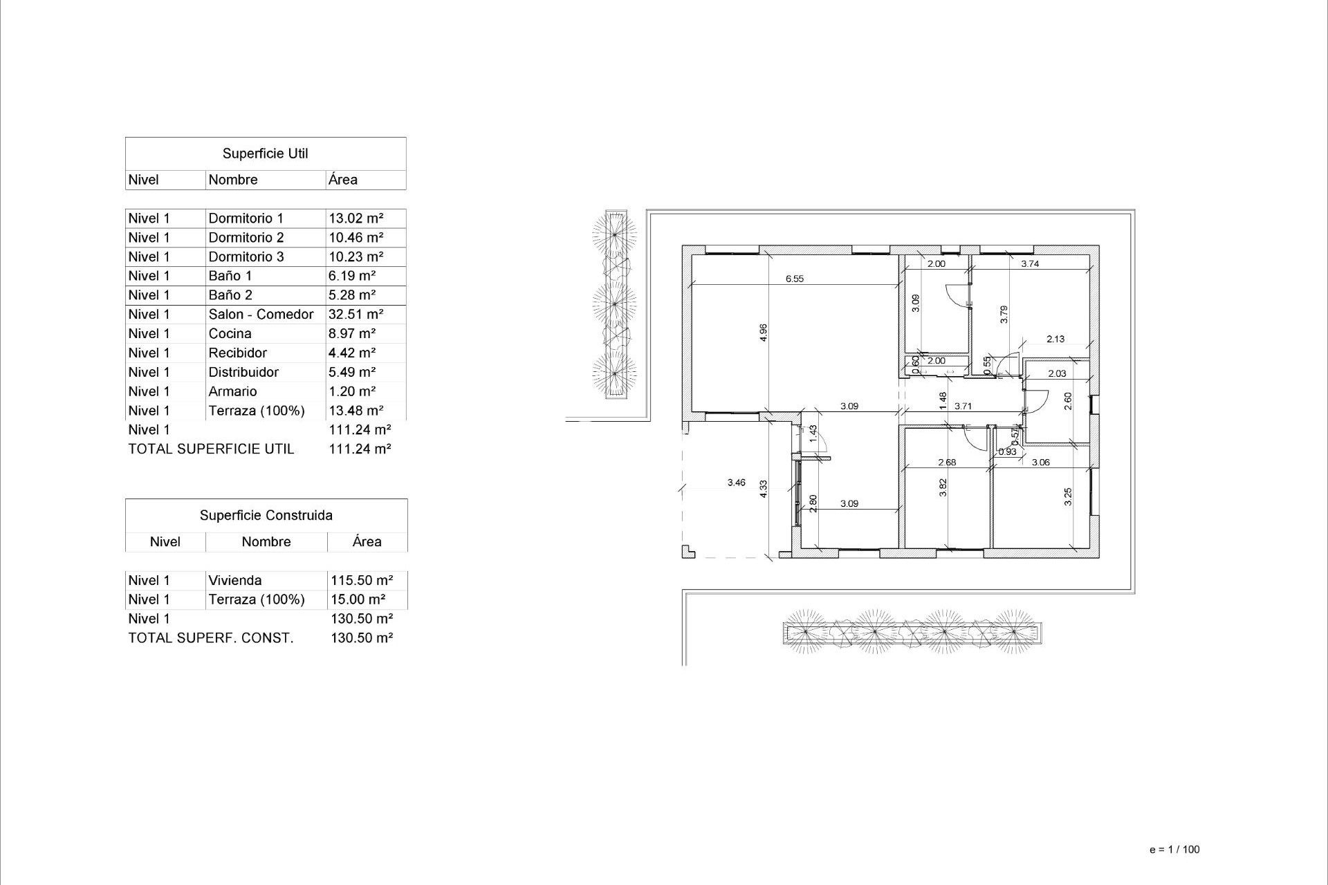
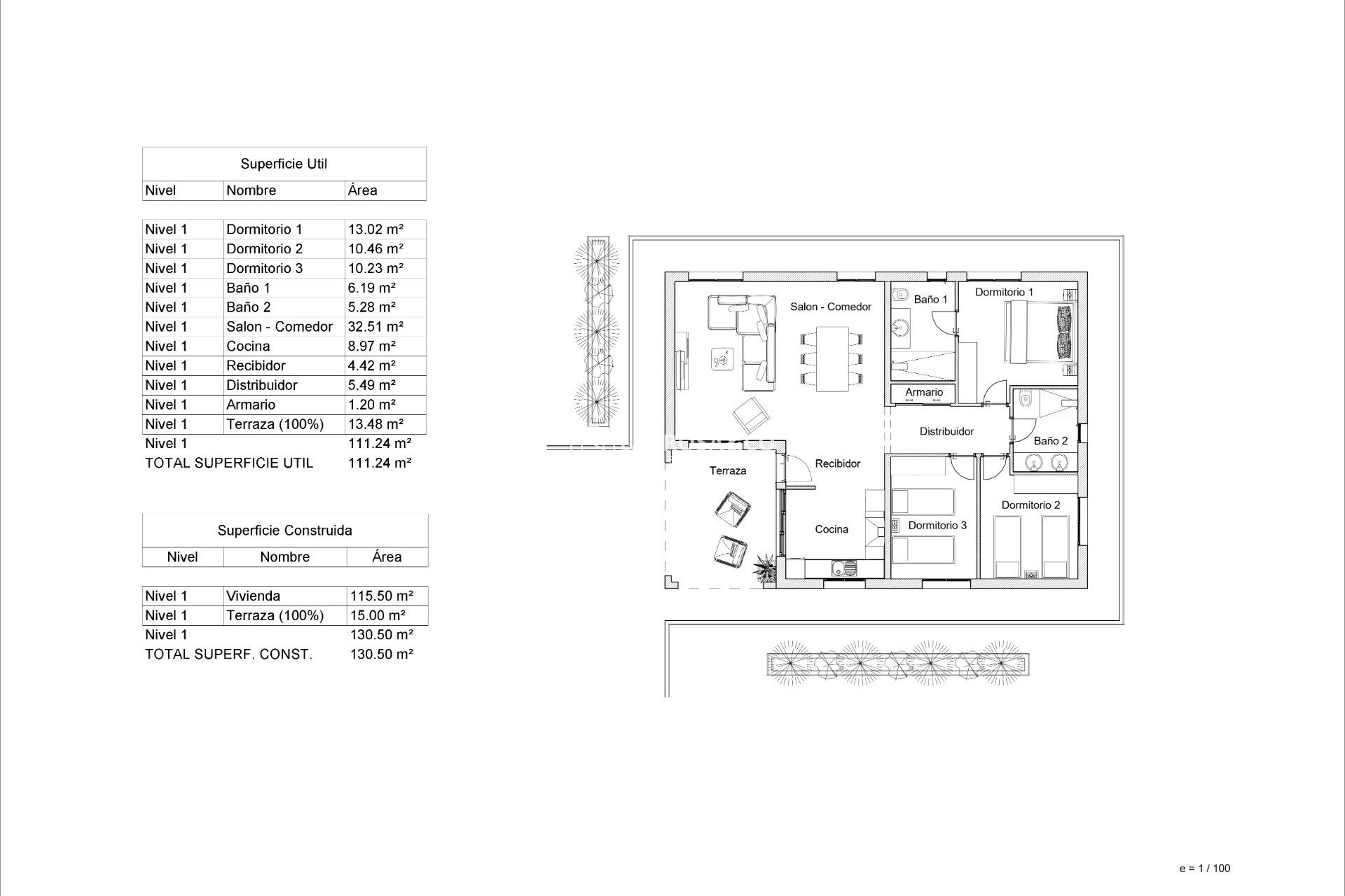
  • Застроенная площадь

    130m2
  • Участок

    10.227m2
  • Спальни

    3
  • Ванные комнаты

    2
  • Бассейн

    Да
Спальни Спальни:

3

Ванные комнаты Ванные комнаты:

2

Застроенная площадь Застроенная площадь:

130m2

Участок Участок:

10.227m2

Бассейн Бассейн:

Да

Частный бассейн
Garden
Gated
Number of Parking Spaces: 1
Near Schools
Air Conditioning: Pre-Installed
Double Bedrooms: 3
Terrace: 15 Msq.
Useable Build Space: 110 Msq.
Parking - Space
Location: Rural, Mountain
Beach: 40000 Meters

Описание

Расположение

Larrosa&co

Провести опрос

Responsable del tratamiento: Proiectum 2015, SL, Finalidad del tratamiento: Gestión y control de los servicios ofrecidos a través de la página Web de Servicios inmobiliarios, Envío de información a traves de newsletter y otros, Legitimación: Por consentimiento, Destinatarios: No se cederan los datos, salvo para elaborar contabilidad, Derechos de las personas interesadas: Acceder, rectificar y suprimir los datos, solicitar la portabilidad de los mismos, oponerse altratamiento y solicitar la limitación de éste, Procedencia de los datos: El Propio interesado, Información Adicional: Puede consultarse la información adicional y detallada sobre protección de datos Aquí.
WhatsApp