Застроенная площадь
Участок
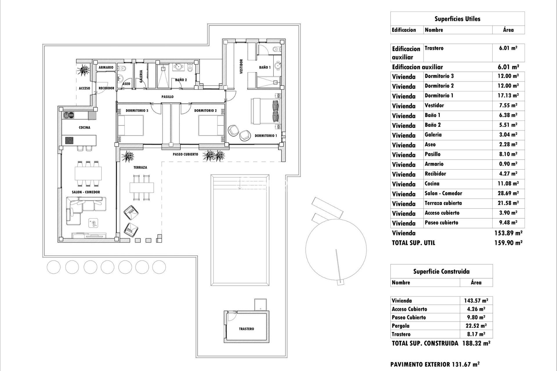
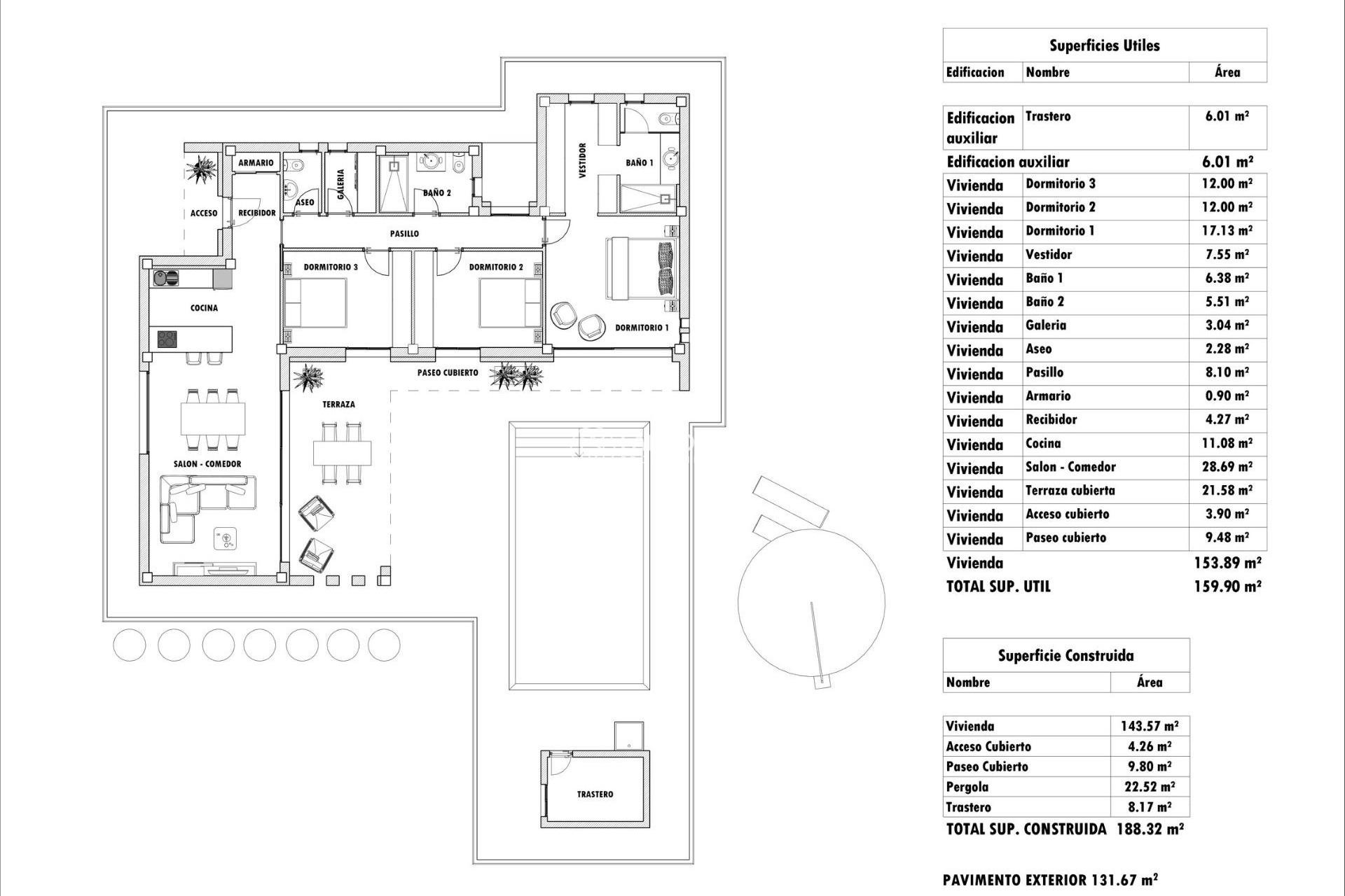
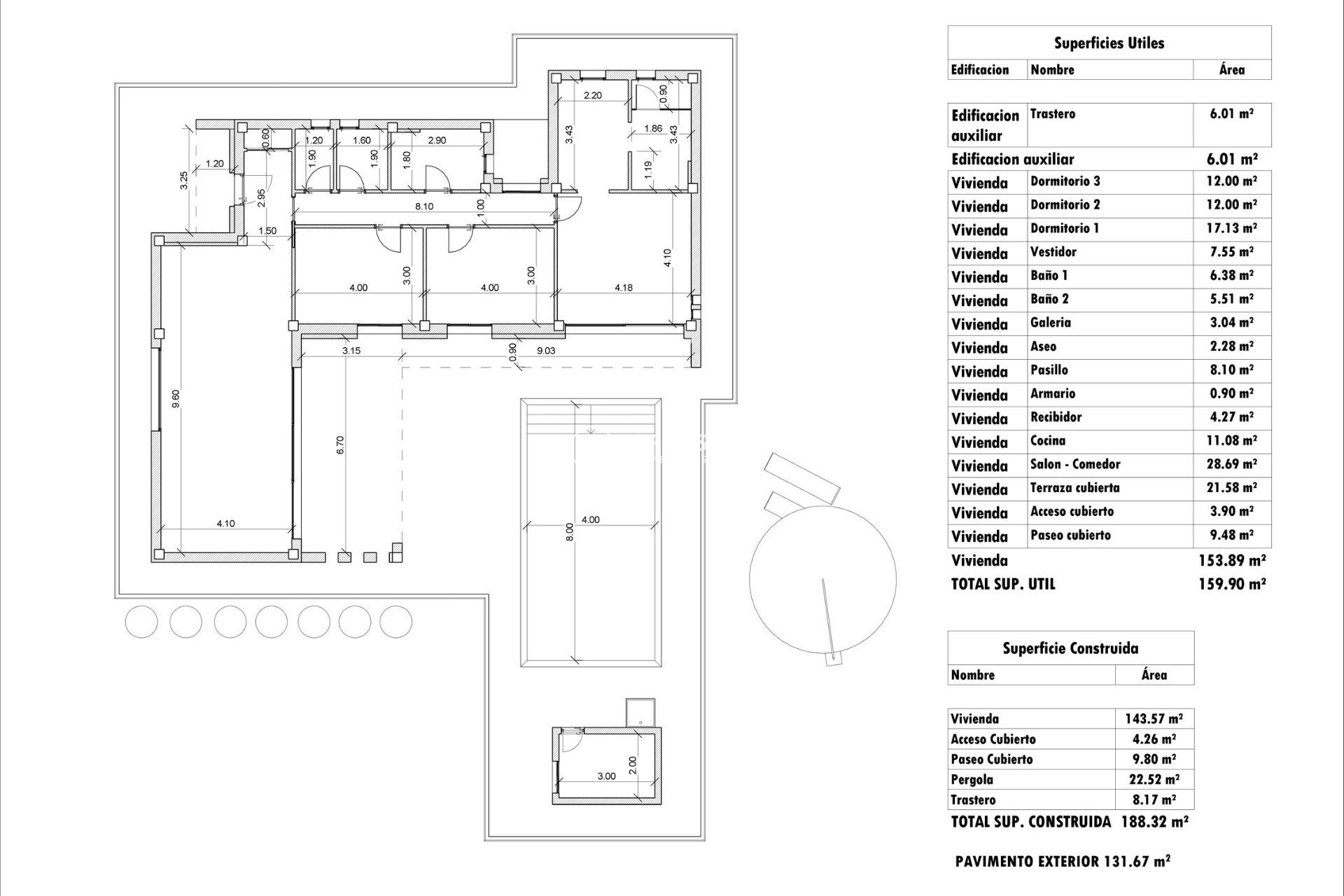
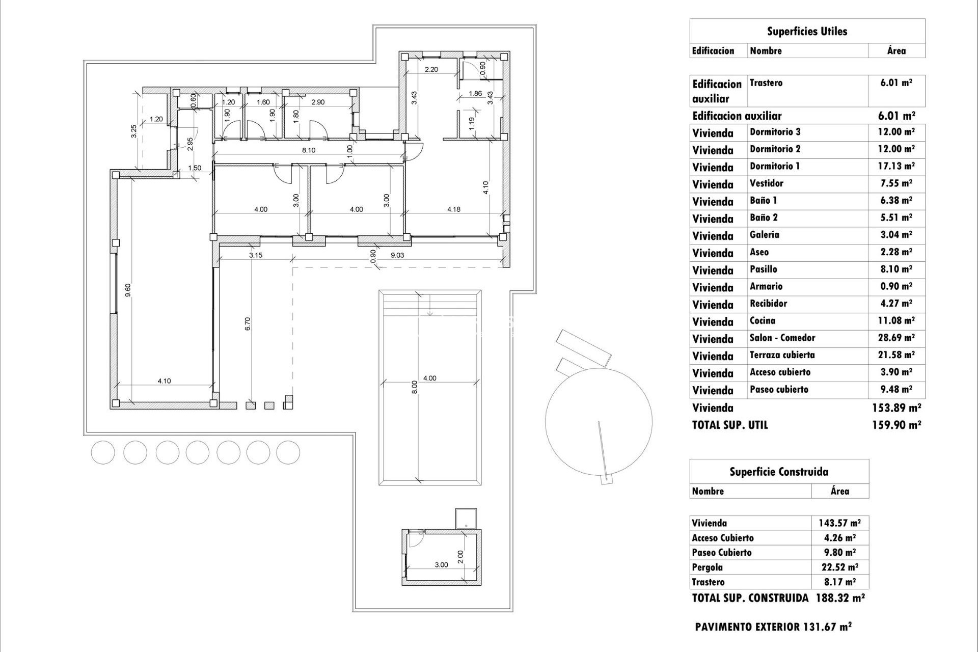
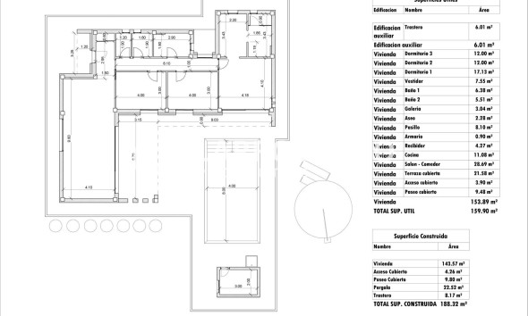
Спальни
Ванные комнаты
Бассейн
3
3
188m2
13.172m2
Да
Новые виллы, расположенные в районе Аспе. Новые виллы с несколькими моделями на выбор: 2, 3 или 4 спальни, один или два этажа, построенные с использованием плит или каркаса: точная цена будет рассчитана в зависимости от выбранной модели и участка. Все виллы построены на участках площадью более 10 000 м2, из которых около 2500 м2 будут огорожены. Виллы располагают американской кухней с гостиной, встроенными шкафами, частным бассейном, верандой, кладовой и открытой парковкой. На выбор предлагается несколько участков, для расчета цены был взят участок стоимостью 75 000 евро (при выборе другого участка разница в цене будет доплачена или вычтена из стоимости). Строительство ведется на условиях самофинансирования, сдача объекта в эксплуатацию - примерно через 12 месяцев с момента получения лицензии. Если вы ищете тихое место, недалеко от типичных испанских деревень, вдали от массового туризма, в окружении гор, с очень большим участком и в 30 минутах от моря, то это ваш дом. Аспе - типичная испанская деревня со всеми удобствами для повседневной жизни, окруженная горами и несколькими природными заповедниками, где можно заняться пешим туризмом или кататься на горных велосипедах. Расположен в 25 км от пляжа, в 9 км от Эльче и в 20 км от аэропорта Аликанте.