Новостройка » Квартира » Торревьеха »
LARROSA LARROSA

Торревьеха · Centro Квартира · Новостройка

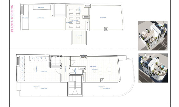
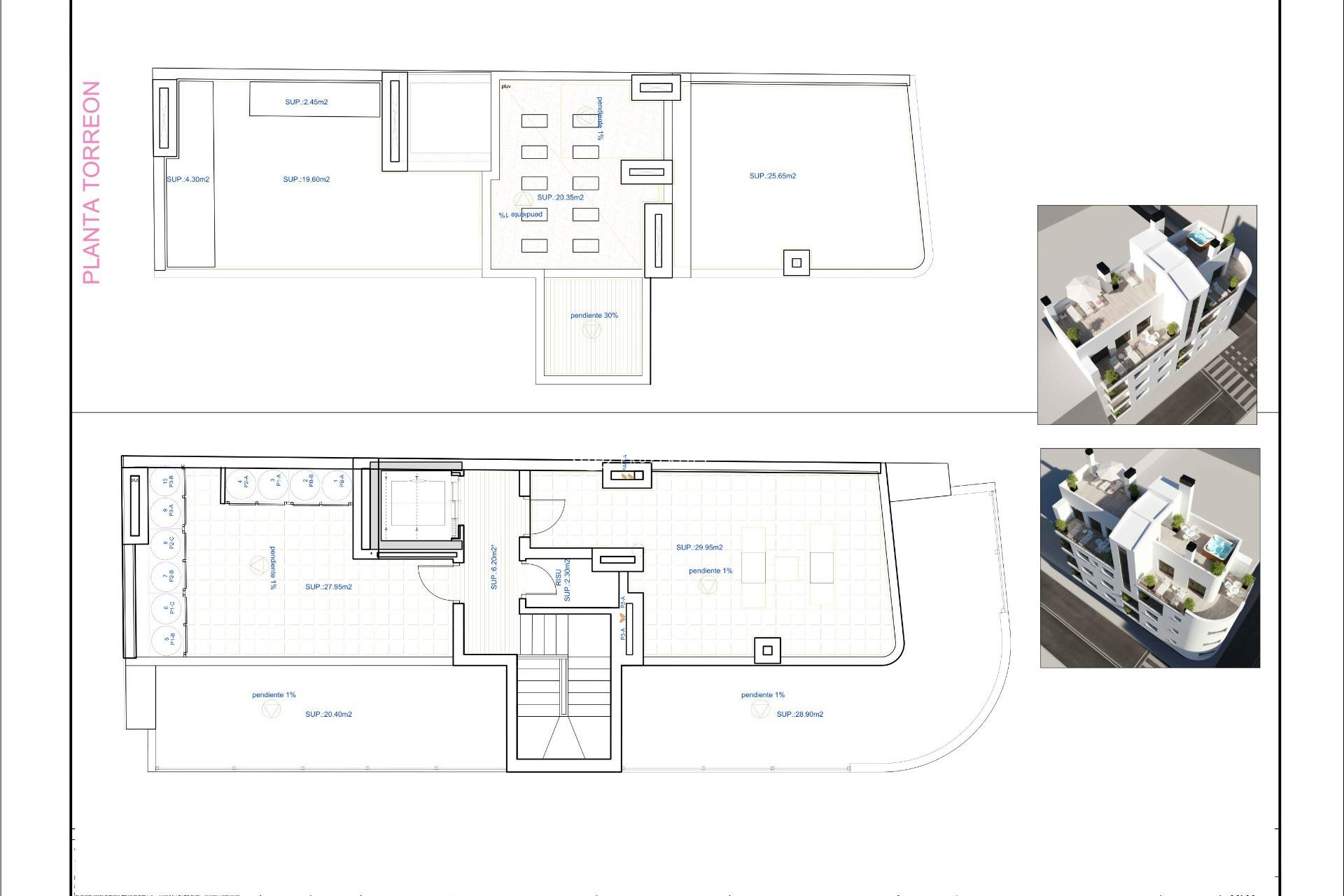
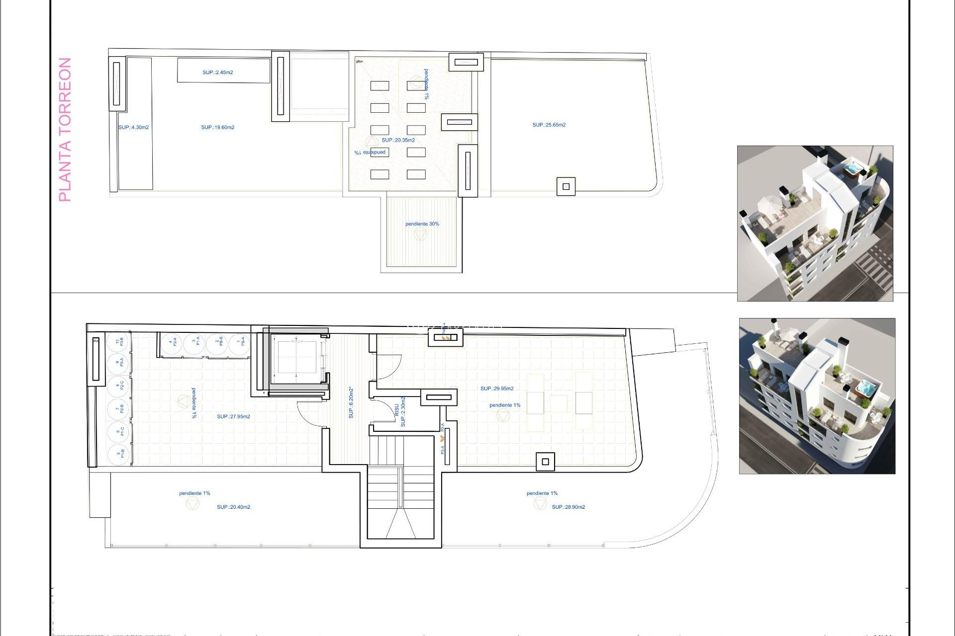
Характеристики

  • Застроенная площадь

    52m2
  • Спальни

    1
  • Ванные комнаты

    1
Спальни Спальни:

1

Ванные комнаты Ванные комнаты:

1

Застроенная площадь Застроенная площадь:

52m2

Готово к заселению
Solarium: Yes
Near Schools
Air Conditioning: Pre-Installed
Near Commercial Center
Near Bus Route
Location: Coastal
Elevator/Lift
Double Bedrooms: 1
Beach: 700 Meters
Space
Terrace: 2 Msq.
Useable Build Space: 35 Msq.

Описание

Расположение

Larrosa&co

Провести опрос

Responsable del tratamiento: Proiectum 2015, SL, Finalidad del tratamiento: Gestión y control de los servicios ofrecidos a través de la página Web de Servicios inmobiliarios, Envío de información a traves de newsletter y otros, Legitimación: Por consentimiento, Destinatarios: No se cederan los datos, salvo para elaborar contabilidad, Derechos de las personas interesadas: Acceder, rectificar y suprimir los datos, solicitar la portabilidad de los mismos, oponerse altratamiento y solicitar la limitación de éste, Procedencia de los datos: El Propio interesado, Información Adicional: Puede consultarse la información adicional y detallada sobre protección de datos Aquí.
WhatsApp