Meters
Bedrooms
Bathrooms
Pool
1
1
40m2
Yes
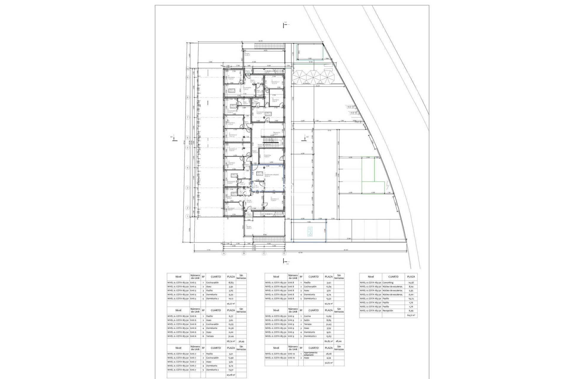
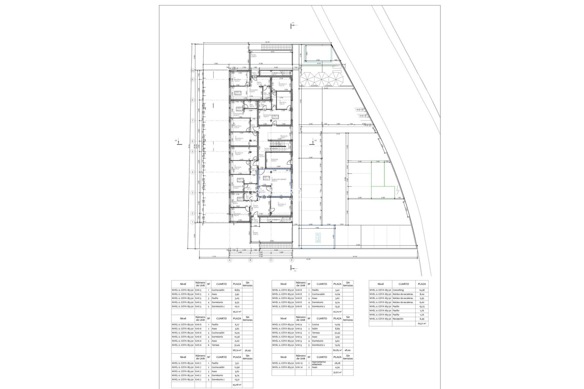
Tourist Licensed New Build Apartments in Finestrat: Investment Opportunity Near Golf and Benidorm Exclusive Investment Apartments in Finestrat-Costa Blanca Discover this attractive new development of 18 fully licensed tourist apartments in one of the most sought after areas of the Costa Blanca. Located next to Puig Campana Golf in Finestrat, this elevated residential complex enjoys spectacular open views of both the Mediterranean Sea and the surrounding mountains. Just 4 km from the beaches of Benidorm and close to the charming village of Finestrat, the location offers the perfect combination of tranquility, accessibility and strong rental demand. Finestrat is a highly desirable area known for its natural beauty, excellent infrastructure and proximity to major leisure destinations. The village preserves its traditional Spanish charm, while the nearby coast offers vibrant nightlife, beaches, shopping and entertainment. Modern Apartments with Sea and Mountain Views The development consists of 12 apartments with beautiful sea views and 6 apartments with open mountain views. Buyers can choose between ground floor and top floor units in a low rise building without lift access. Different layouts are available, including studio apartments and 1 or 2 bedroom properties, all with 1 bathroom. Some apartments include private terraces, ideal for enjoying the Mediterranean climate and panoramic surroundings, while others offer efficient interior layouts designed for comfort and practicality. High Quality Finishes and Comfortable Living Each apartment is delivered with high quality specifications and modern finishes, including multisplit air conditioning, aerothermal hot water system, fitted kitchen and fully equipped bathrooms with vanity unit, mirror, underfloor heating and shower screen. For added convenience, the developer also offers an optional furniture package at a fixed price, making the property ready for immediate use or rental. Resort Style Amenities and Rental Management Residents and guests can enjoy excellent communal facilities, including a swimming pool, communal solarium area and children’s play zone. Optional outdoor parking spaces are also available at an additional cost. This is a professionally managed tourist investment product. The entire development will be operated by a single management company, generating rental income for owners while allowing personal use for up to 4 months per year. As a tourist licensed investment property, VAT is deductible, providing a significant financial advantage and reducing acquisition costs. Excellent Location and Key Distances Puig Campana Golf 0.3 km La Marina Shopping Center 2 km Benidorm beaches 4 km Finestrat village 3 km Port of Benidorm 5 km Alicante Airport 55 km School 0.1 km Secure Your High Yield Investment on the Costa Blanca Whether you are looking for a profitable investment, a holiday retreat or both, these tourist apartments in Finestrat offer exceptional value and location. Contact us today for more information or to arrange a viewing and secure your investment property on the Costa Blanca.