Meters
Plot
Bedrooms
Bathrooms
1978
4
2
182m2
157m2
191m2
190m2
American
Good condition
0
South east
15 Km.
45 Km.
0.5 Km.
8 Km.
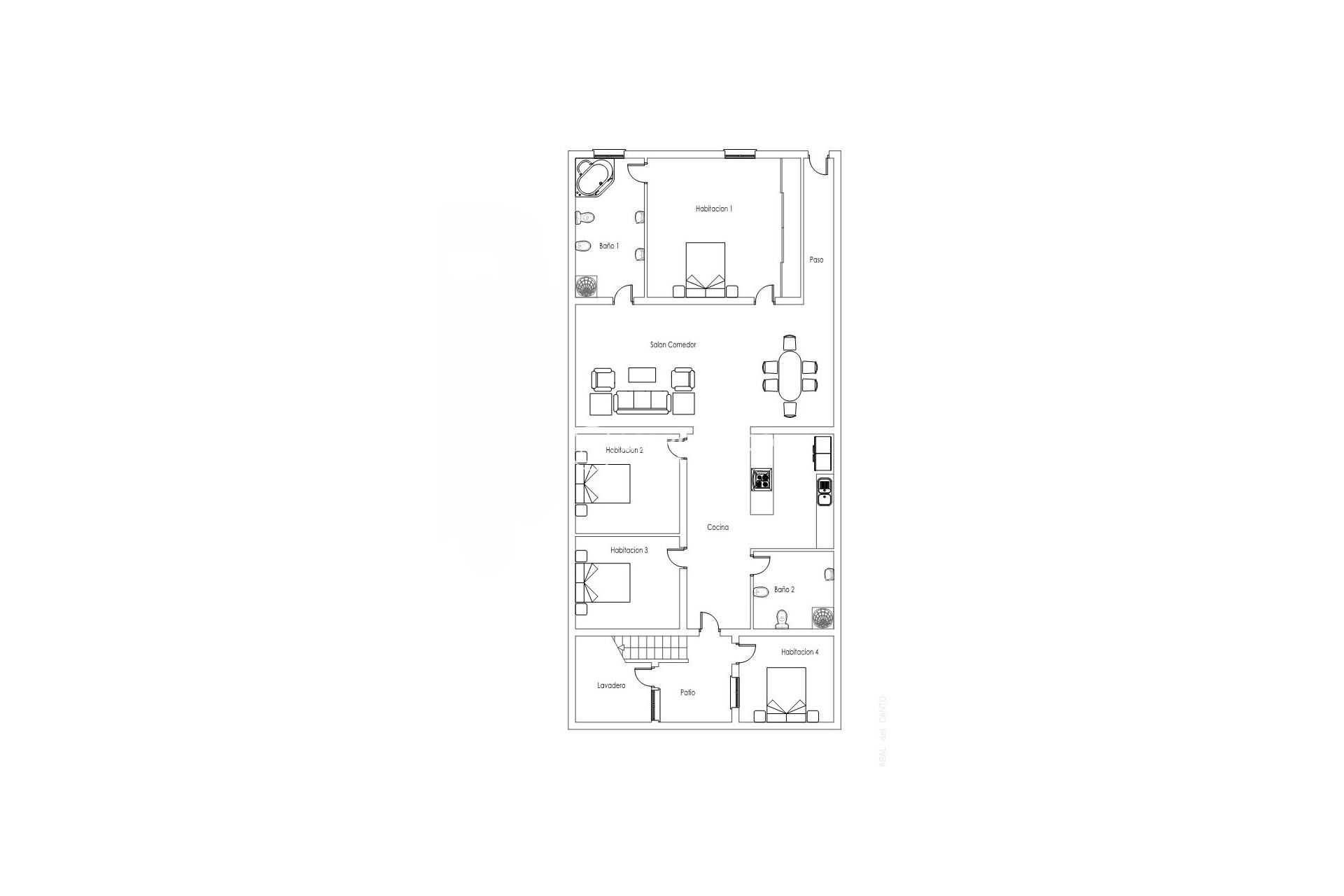
This charming house in Los Montesinos was originally built in 1978 and renovated several years ago. It offers all its living space on one level, with a total constructed area of 182 m² and 157 m² of usable space. The property features four bedrooms and two bathrooms, including a spacious master suite with an exceptionally large bathroom filled with natural light. The modern open kitchen is designed with electric appliances and connects seamlessly to the large living area, creating a bright and welcoming space. Skylight-style windows in the bedrooms enhance natural light and ventilation, while recently painted walls give the home a fresh, updated look.
The house includes a practical storage room and patio, as well as an impressive roof terrace with direct access from the interior. This outdoor area offers enormous potential for creating a unique space to relax, entertain, or enjoy the sun. With its versatile layout, the property also provides many possibilities for rearranging the distribution and personalizing the style to suit different needs.
Located in the heart of Los Montesinos, the house is within walking distance of essential services, shops, and a local park. The town is known for its friendly atmosphere and well-developed surroundings, making it suitable for families, retirees, or anyone seeking a comfortable lifestyle close to amenities. The sea is only a short drive away, and Alicante Airport can be reached quickly, making this location both practical and enjoyable.
Please note that taxes and purchase expenses are not included in the price. Visits can be arranged at any time—contact us today to book your viewing.