New build » Apartment » Orihuela costa &raq
LARROSA LARROSA

Orihuela costa · Playa Flamenca Apartment · New build

Orihuela costa · Playa Flamenca Apartment · New build

Features

  • Meters

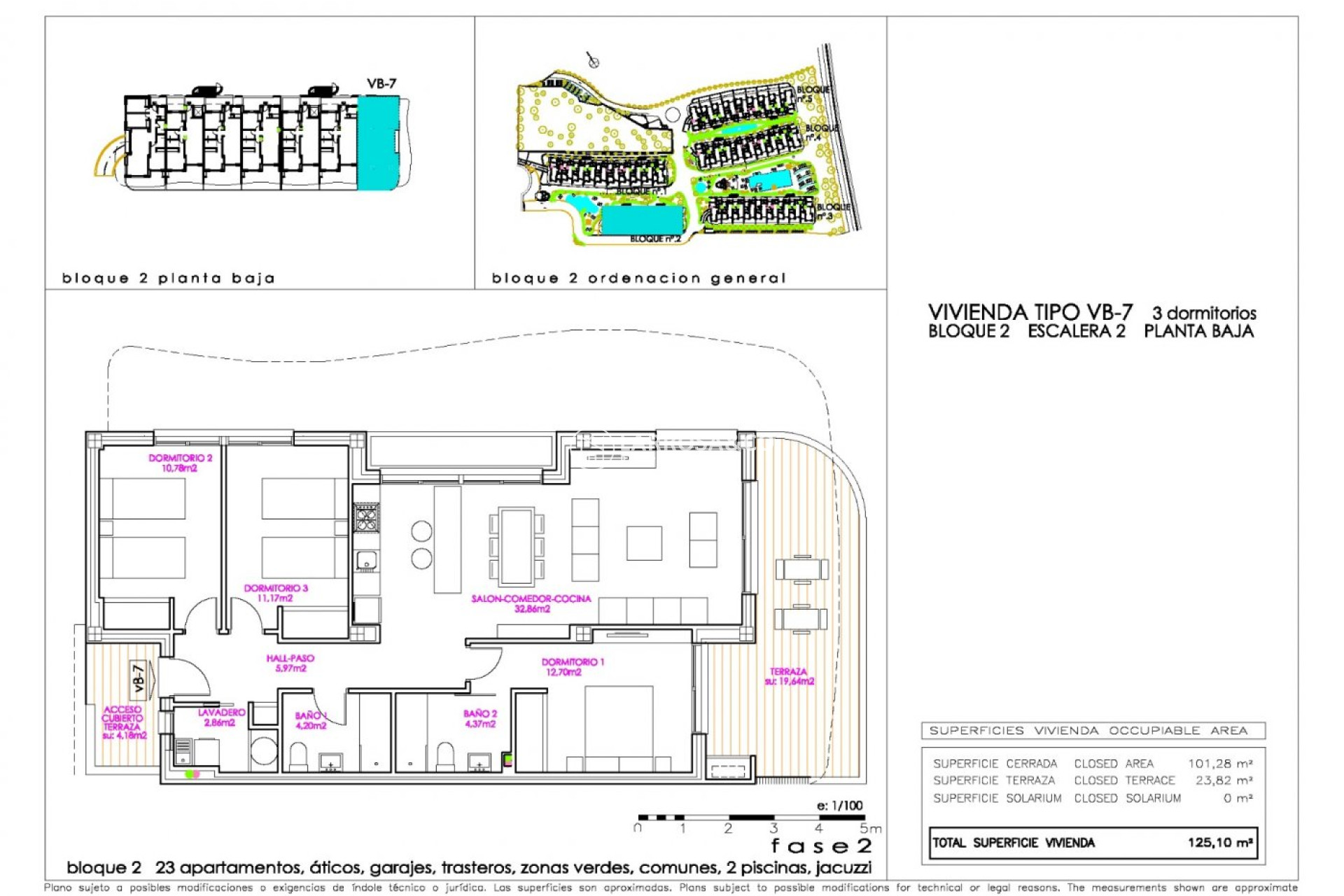
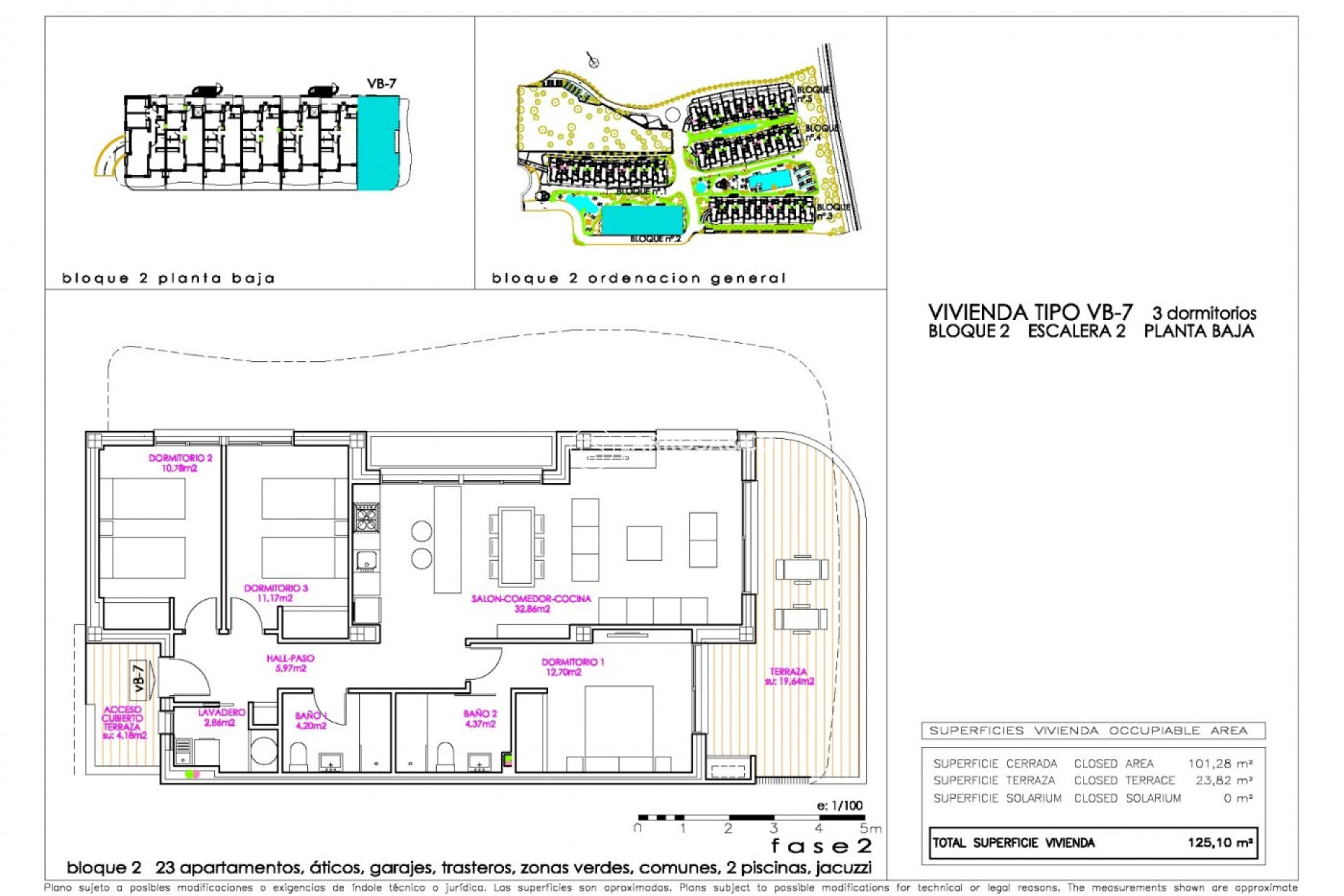
    99m2
  • Bedrooms

    3
  • Bathrooms

    2
  • Pool

    Yes
Bedrooms Bedrooms:

3

Bathrooms Bathrooms:

2

Built Built:

99m2

Pool Pool:

Yes

Terrace: 23 Msq.
Parking - Space
Beach: 500 Meters
Storage / Trastero
Garden
Communal Pool
Gated
Number of Parking Spaces: 1
Near Trees
Near Schools
Air Conditioning: Pre-Installed
Double Bedrooms: 3
Near Commercial Center
Near Bus Route
Elevator/Lift
Location: Coastal, Urbanisation
Useable Build Space: 90 Msq.

Description

Map

Larrosa&co

Make an enquiry

Responsable del tratamiento: Proiectum 2015, SL, Finalidad del tratamiento: Gestión y control de los servicios ofrecidos a través de la página Web de Servicios inmobiliarios, Envío de información a traves de newsletter y otros, Legitimación: Por consentimiento, Destinatarios: No se cederan los datos, salvo para elaborar contabilidad, Derechos de las personas interesadas: Acceder, rectificar y suprimir los datos, solicitar la portabilidad de los mismos, oponerse altratamiento y solicitar la limitación de éste, Procedencia de los datos: El Propio interesado, Información Adicional: Puede consultarse la información adicional y detallada sobre protección de datos Aquí.
WhatsApp