New build » Detached House/Villa » Aspe &ra
LARROSA LARROSA

Aspe · Poligono 19 Detached House/Villa · New build

Aspe · Poligono 19 Detached House/Villa · New build

Features

  • Meters

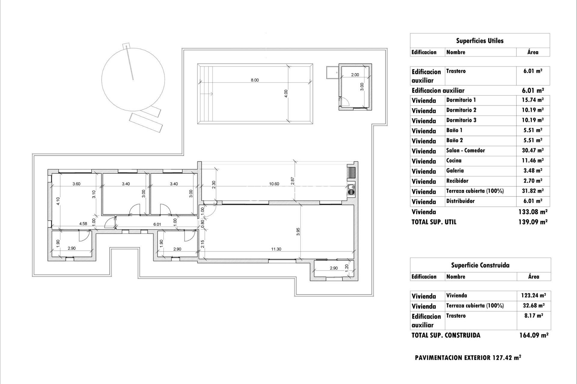
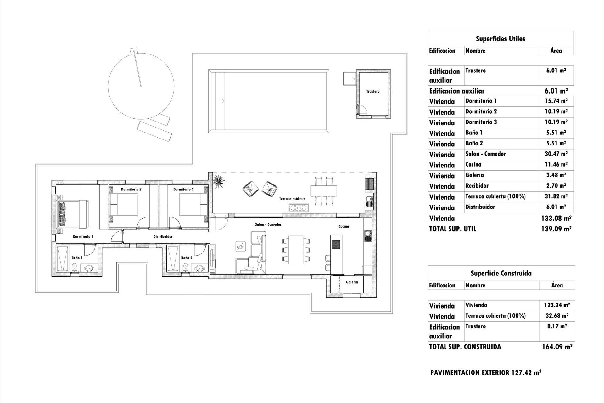
    164m2
  • Plot

    13.172m2
  • Bedrooms

    3
  • Bathrooms

    2
  • Pool

    Yes
Bedrooms Bedrooms:

3

Bathrooms Bathrooms:

2

Built Built:

164m2

Plot Plot:

13.172m2

Pool Pool:

Yes

Air Conditioning: Pre-Installed
Double Bedrooms: 3
Terrace: 32 Msq.
Parking - Space
Location: Rural, Mountain
Beach: 25000 Meters
Useable Build Space: 139 Msq.
Storage / Trastero
Private pool
Garden
Gated
Number of Parking Spaces: 1
Near Schools

Description

Map

Larrosa&co

Make an enquiry

Responsable del tratamiento: Proiectum 2015, SL, Finalidad del tratamiento: Gestión y control de los servicios ofrecidos a través de la página Web de Servicios inmobiliarios, Envío de información a traves de newsletter y otros, Legitimación: Por consentimiento, Destinatarios: No se cederan los datos, salvo para elaborar contabilidad, Derechos de las personas interesadas: Acceder, rectificar y suprimir los datos, solicitar la portabilidad de los mismos, oponerse altratamiento y solicitar la limitación de éste, Procedencia de los datos: El Propio interesado, Información Adicional: Puede consultarse la información adicional y detallada sobre protección de datos Aquí.
WhatsApp