Meters
Perceel
Slaapkamers
Badkamers
Zwembad
4
3
248m2
13.172m2
Ja
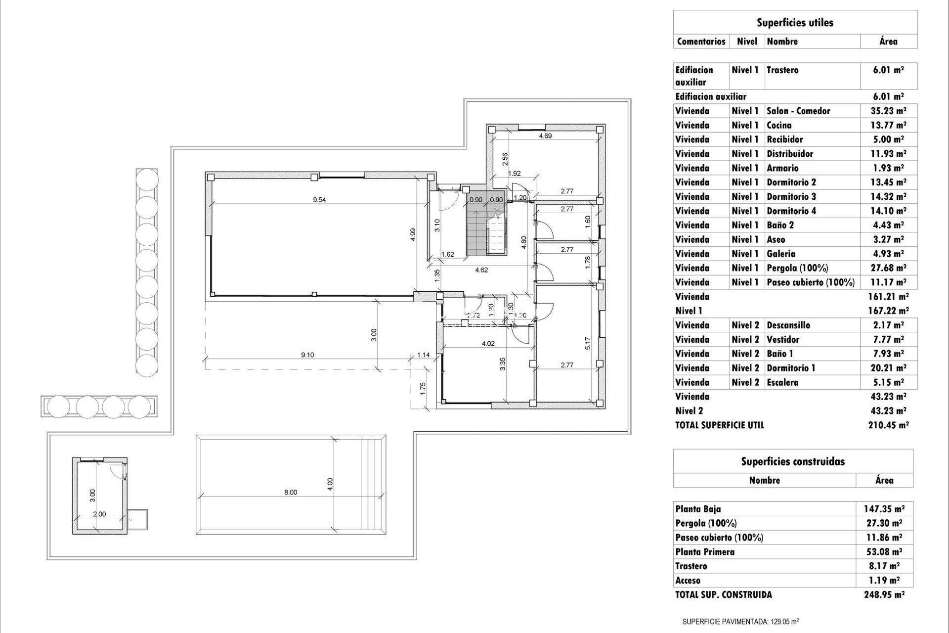
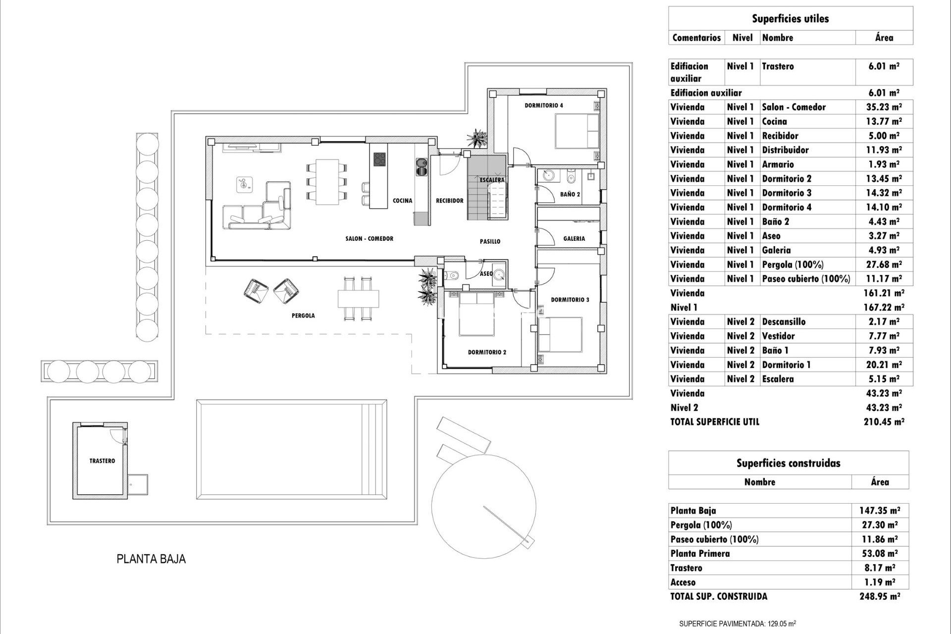
Nieuwbouwwoningen gelegen in de gemeente Aspe. Nieuwbouwwoningen met verschillende modellen naar keuze met 2, 3 of 4 slaapkamers, met één of twee verdiepingen en gebouwd met platen of met een structuur: afhankelijk van het model en het gekozen perceel wordt de exacte prijs berekend. Alle villa's worden gebouwd op rustieke percelen van meer dan 10.000 m2, waarvan ongeveer 2.500 m2 omheind zal worden. De villa's beschikken over een open keuken met woonkamer, inbouwkasten, privézwembad, veranda, berging en buitenparkeerplaats. Er zijn verschillende percelen beschikbaar. Voor de prijsberekening is uitgegaan van een perceel met een prijs van 75 000 euro (als u een ander perceel kiest, betaalt u het verschil). Het project wordt in eigen beheer uitgevoerd en wordt binnen ongeveer 12 maanden na verlening van de vergunning opgeleverd. Als u op zoek bent naar een rustige omgeving, dicht bij typisch Spaanse dorpjes, ver weg van de toeristische drukte, omgeven door bergen, met een zeer groot perceel en op ongeveer 30 minuten van de zee, dan is dit uw huis. Aspe is een typisch Spaans dorp met alle voorzieningen voor het dagelijks leven, omgeven door bergen en met verschillende natuurgebieden in de omgeving waar u kunt wandelen of mountainbiken. Gelegen op 25 km van het strand, op 9 km van Elche en op ongeveer 20 km van de luchthaven van Alicante.