Meters
Perceel
Slaapkamers
Badkamers
Zwembad
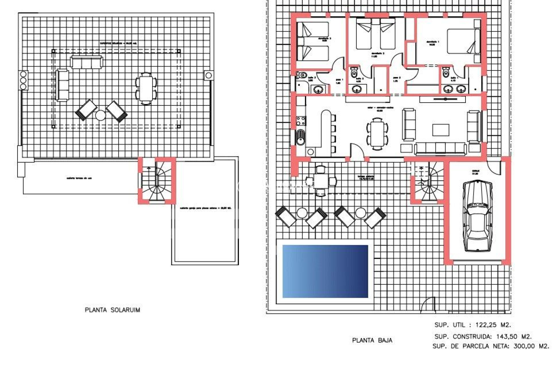
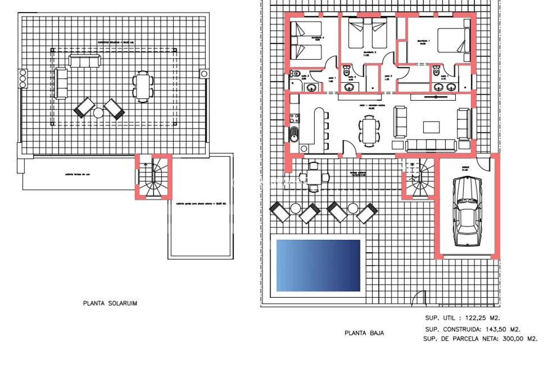
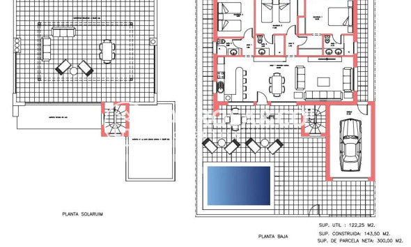
3
3
143m2
300m2
Ja
Nieuwbouwproject met villa's en rijtjeshuizen in Fuente Álamo, Murcia. Deze locatie biedt een uitzonderlijke natuurlijke omgeving, ver weg van de drukte van de grote steden en het toerisme aan de kust. Bovendien streven we naar een duurzame ontwikkeling, waarbij we onze impact op het milieu minimaliseren en de integratie met de lokale gemeenschap maximaliseren. Hier worden uw dromen van een rustige en duurzame levensstijl werkelijkheid. Stelt u zich eens voor dat u elke ochtend wakker wordt in een prachtige natuurlijke omgeving, omringd door rustige landschappen en de unieke schoonheid van het platteland van Murcia. Deze projectontwikkeling geeft prioriteit aan energie-efficiëntie, het gebruik van milieuvriendelijke materialen en een harmonieuze integratie in de landelijke omgeving. Van het ontwerp van het pand tot de planning van de ontwikkeling om onze ecologische voetafdruk te verkleinen en verantwoord handelen in alle bedrijfsactiviteiten te bevorderen. Volledige installatie van airconditioning via luchtkanalen, warm/koud. Video-intercomsysteem. Gekleurde veiligheidsdeur met slot en vandalismebestendig beslag. Kasten met opbergruimte, aan de binnenkant bekleed, wit gelakt. Keukenmeubels inclusief apparatuur Warm water via aerothermie. Elektrische rolluiken. Pergola's in solariums. Privézwembad van 2,5 x 4,5 m met onderwaterverlichting en zuivering met zoutchloorinstallatie. Voorbereiding voor buitenkeuken/jacuzzi in solarium Fuente Álamo de Murcia is een plaats en gemeente in de regio Murcia, in het zuiden van Spanje. Het ligt 22 km ten noordwesten van Cartagena en 35 km ten zuidwesten van Murcia. De stad ligt in het stroomgebied van de Mar Menor, omringd door de bergketens Algarrobo, Los Gómez, Los Victorias en Carrascoy. Het water uit deze bergen stroomt naar beneden in de Rambla de Fuente Álamo en vervolgens in de Mar Menor. Fuente Álamo ligt op 30 minuten van de luchthaven van Murcia - Corvera. De dichtstbijzijnde winkels liggen op 6 km.