Mètres
Chambres
Salles de bains
Piscine
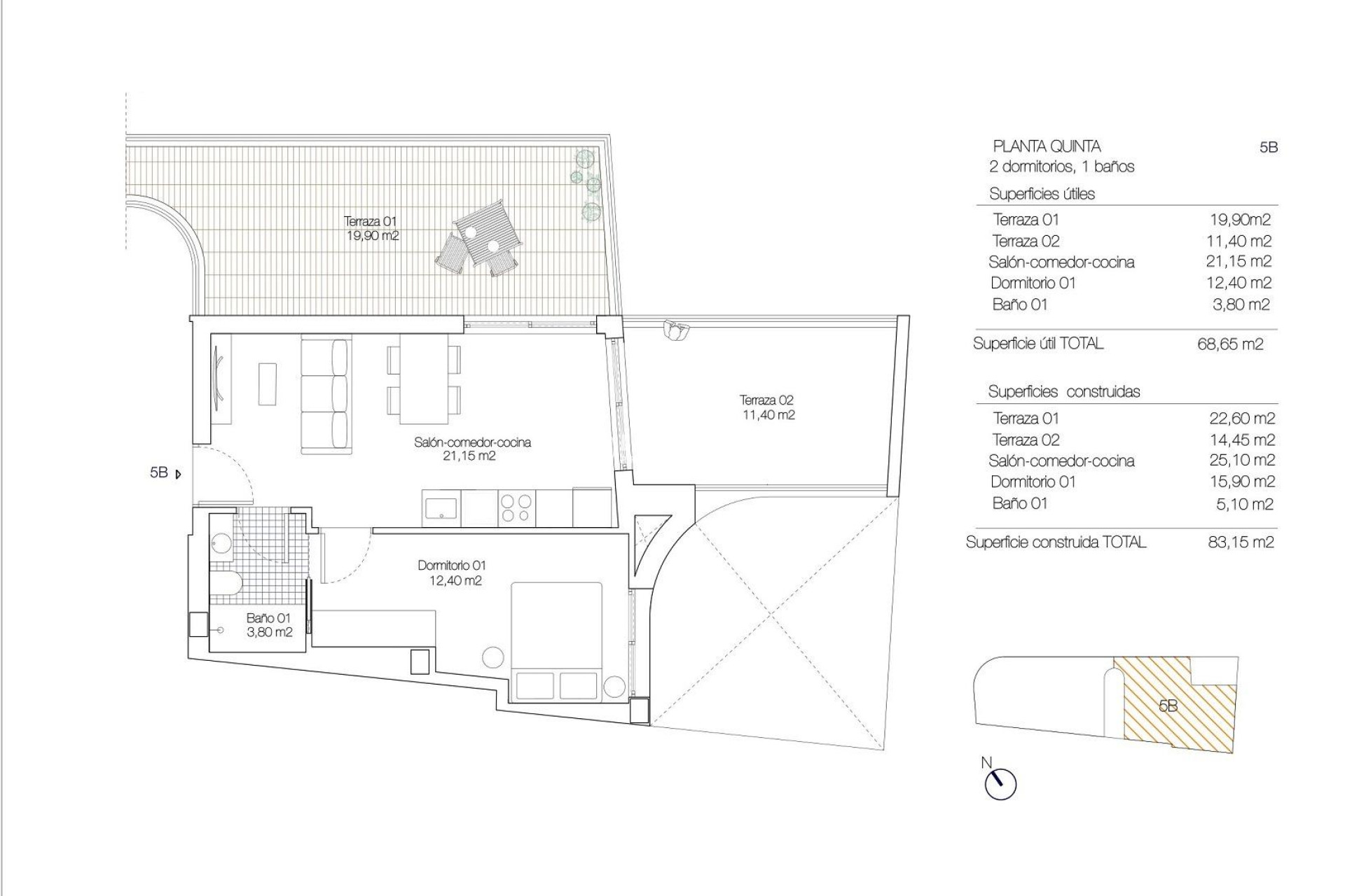
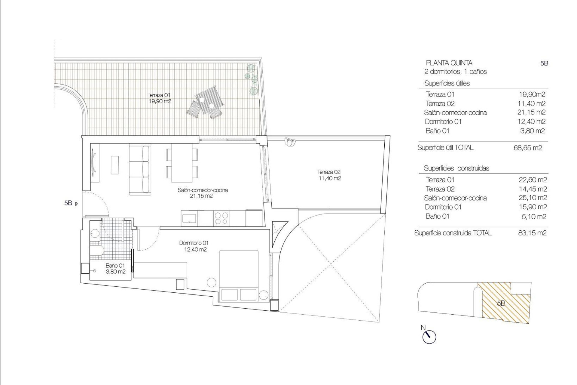
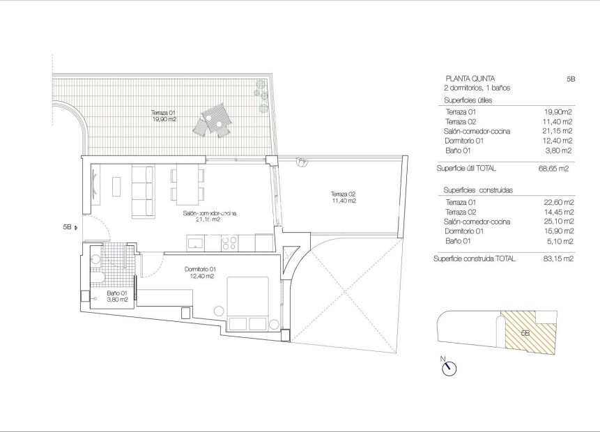
1
1
83m2
Oui
APPARTEMENTS ET PENTHOUSES NEUFS PRÈS DE LA PLAGE À TORREVIEJA Appartements nouvellement construits avec l'un des meilleurs emplacements que vous pouvez trouver, situé à 50 mètres de la plage de Los Locos. La résidence se compose d'appartements de 2 et 3 chambres et de penthouses de 1 et 2 chambres, d'un séjour ouvert avec une disposition spacieuse, d'une cuisine équipée d'appareils électroménagers de grande marque et d'armoires encastrées, de salles de bains entièrement équipées avec chauffage par le sol. Complexe résidentiel nouvellement construit avec un design moderne et des finitions de haute qualité. Torreviejas Playa de Los Locos dispose d'une agréable promenade avec une variété de bars, de restaurants et de chiringuitos où vous pourrez savourer d'authentiques paellas espagnoles. Torrevieja est une ville espagnole de la province d'Alicante, sur la Costa Blanca. Elle est connue pour son climat et son littoral typiquement méditerranéens. Elle possède des promenades avec des stations balnéaires le long de ses plages de sable. Le petit musée de la mer et du sel présente des expositions sur l'histoire de la pêche et du sel dans la ville. À l'intérieur des terres, le parc naturel Lagunas de La Mata-Torrevieja propose des sentiers et deux lagunes salées, l'une rose et l'autre verte. L'aéroport d'Alicante se trouve à 40 minutes et celui de Murcie à environ 1 heure.