Nouvelle Construction » Apartment » Orihuel
LARROSA LARROSA

Orihuela costa · Playa Flamenca Apartment · Nouvelle Construction

Orihuela costa · Playa Flamenca Apartment · Nouvelle Construction

Les caractéristiques

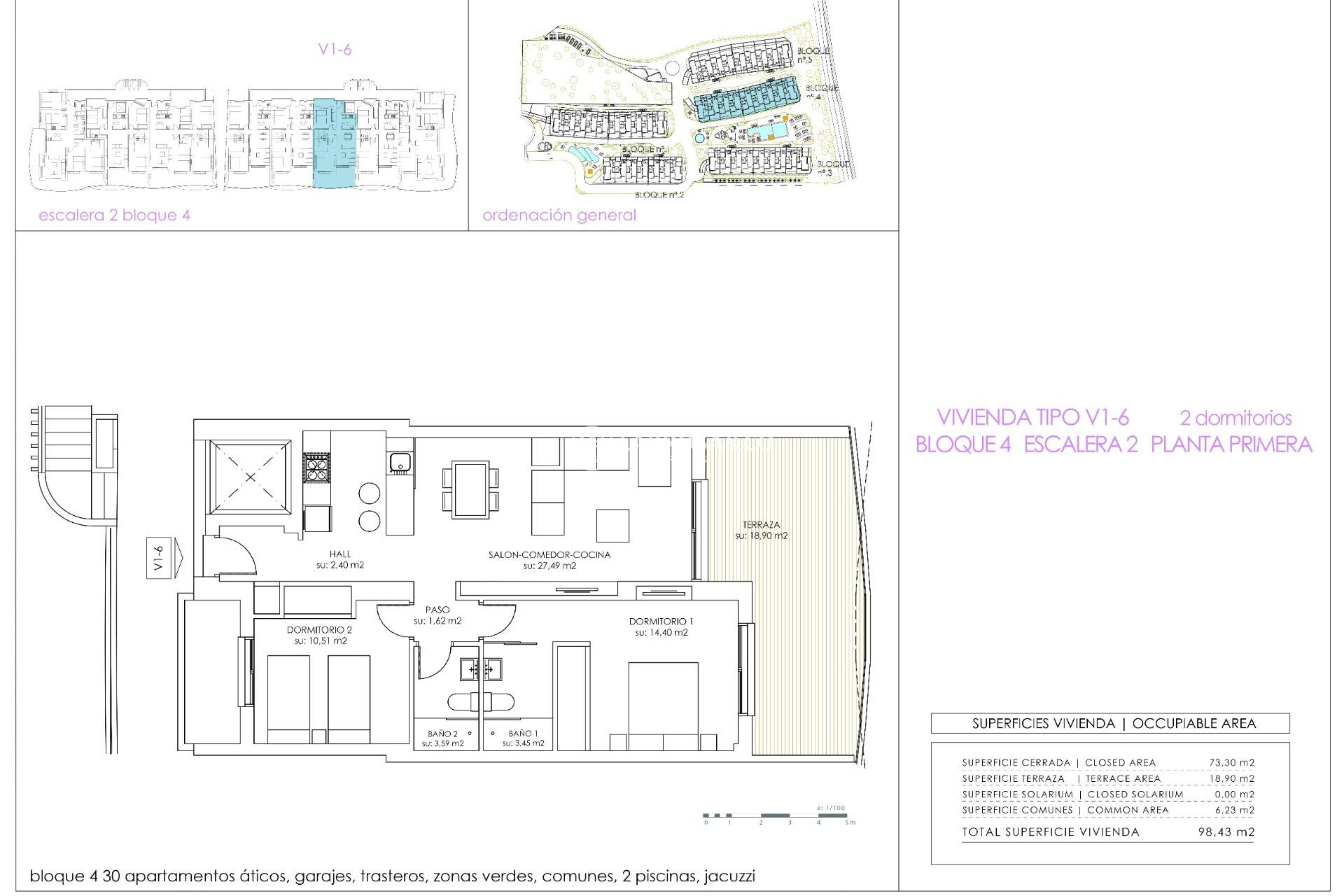
  • Mètres

    73m2
  • Chambres

    2
  • Salles de bains

    2
  • Piscine

    Oui
Chambres Chambres:

2

Salles de bain Salles de bain:

2

Construit Construit:

73m2

Piscine Piscine:

Oui

Storage / Trastero
Communal Pool
Gated
Number of Parking Spaces: 1
Near Trees
Near Schools
Air Conditioning: Pre-Installed
Near Commercial Center
Near Bus Route
Double Bedrooms: 2
Elevator/Lift
Location: Coastal, Urbanisation
Useable Build Space: 65 Msq.
Terrace: 18 Msq.
Parking - Space
Beach: 500 Meters

La description

Carte

Larrosa&co

Faire une enquête

Responsable del tratamiento: Proiectum 2015, SL, Finalidad del tratamiento: Gestión y control de los servicios ofrecidos a través de la página Web de Servicios inmobiliarios, Envío de información a traves de newsletter y otros, Legitimación: Por consentimiento, Destinatarios: No se cederan los datos, salvo para elaborar contabilidad, Derechos de las personas interesadas: Acceder, rectificar y suprimir los datos, solicitar la portabilidad de los mismos, oponerse altratamiento y solicitar la limitación de éste, Procedencia de los datos: El Propio interesado, Información Adicional: Puede consultarse la información adicional y detallada sobre protección de datos Aquí.
WhatsApp