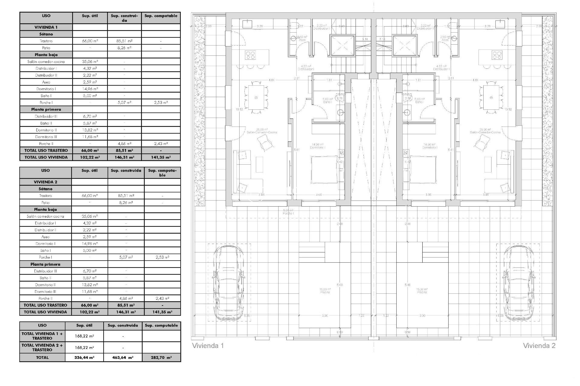
Metros
Parcela
Dormitorios
Baños
Piscina
3
3
141m2
200m2
Sí
Villas pareadas de lujo de nueva construcción en Benijófar – Costa Blanca Living Ubicación privilegiada en Benijófar Estas exclusivas villas pareadas de nueva construcción se encuentran en la encantadora localidad de Benijófar, una de las zonas más cotizadas de la Costa Blanca. Conocida por su mezcla de tradición y estilo de vida moderno, Benijófar ofrece todos los servicios esenciales, como supermercados, farmacias, bancos, restaurantes y tiendas locales. La urbanización está estratégicamente situada a solo 10 km de las doradas playas de Guardamar del Segura y a solo 30 km del aeropuerto de Alicante, lo que la convierte en un lugar ideal tanto para vivir todo el año como para pasar las vacaciones. Diseño espacioso y moderno Cada villa ha sido diseñada con un estilo contemporáneo, maximizando el espacio y la luz natural. La distribución incluye tres dormitorios (uno en la planta baja y dos en la primera planta) y tres baños (incluido uno en el sótano), lo que las hace perfectas para familias e invitados. El salón-comedor diáfano fluye a la perfección hacia la cocina totalmente equipada, creando un ambiente cálido y funcional. Los grandes ventanales realzan la luminosidad en toda la vivienda. Características premium y extras Estas villas destacan por sus acabados de alta calidad y sus cuidados detalles: Sótano de 66 m2 con baño, galería y zona de lavandería. Piscina privada, solárium con barbacoa y fregadero. Chimenea decorativa en el salón. Aparcamiento privado dentro de la parcela. Ascensor desde el sótano hasta la planta superior. 3 paneles solares fotovoltaicos e iluminación LED en toda la vivienda. Aire acondicionado preinstalado. Baños completos con muebles y mamparas de ducha. Parcelas de 200 m2 Estilo de vida y entorno Benijófar combina el encanto de un pueblo tradicional español con la comodidad de los servicios modernos. Los amantes de la naturaleza disfrutarán del parque natural cercano, perfecto para pasear y montar en bicicleta. Para los aficionados al golf, La Marquesa Golf está a solo 5 km, mientras que hay otros campos de primera categoría en un radio de 15 km. Las familias pueden visitar los parques acuáticos de Rojales (4 km) y Torrevieja (12 km), o explorar la animada ciudad de Torrevieja, a solo 12 km. Excelente conectividad Las villas se benefician de un fácil acceso a las autopistas N-332 y AP-7, lo que garantiza rápidas conexiones con Alicante, Elche, Orihuela Costa y Murcia. La zona ofrece el equilibrio perfecto entre tranquilidad, servicios y accesibilidad. La casa de sus sueños en la Costa Blanca Disfrute del lujo, el confort y la vida mediterránea en estas impresionantes villas de nueva construcción en Benijófar. Póngase en contacto con nosotros hoy mismo para obtener más detalles y concertar una visita a su futuro hogar.