Metros
Dormitorios
Baños
Piscina
3
3
171m2
Sí
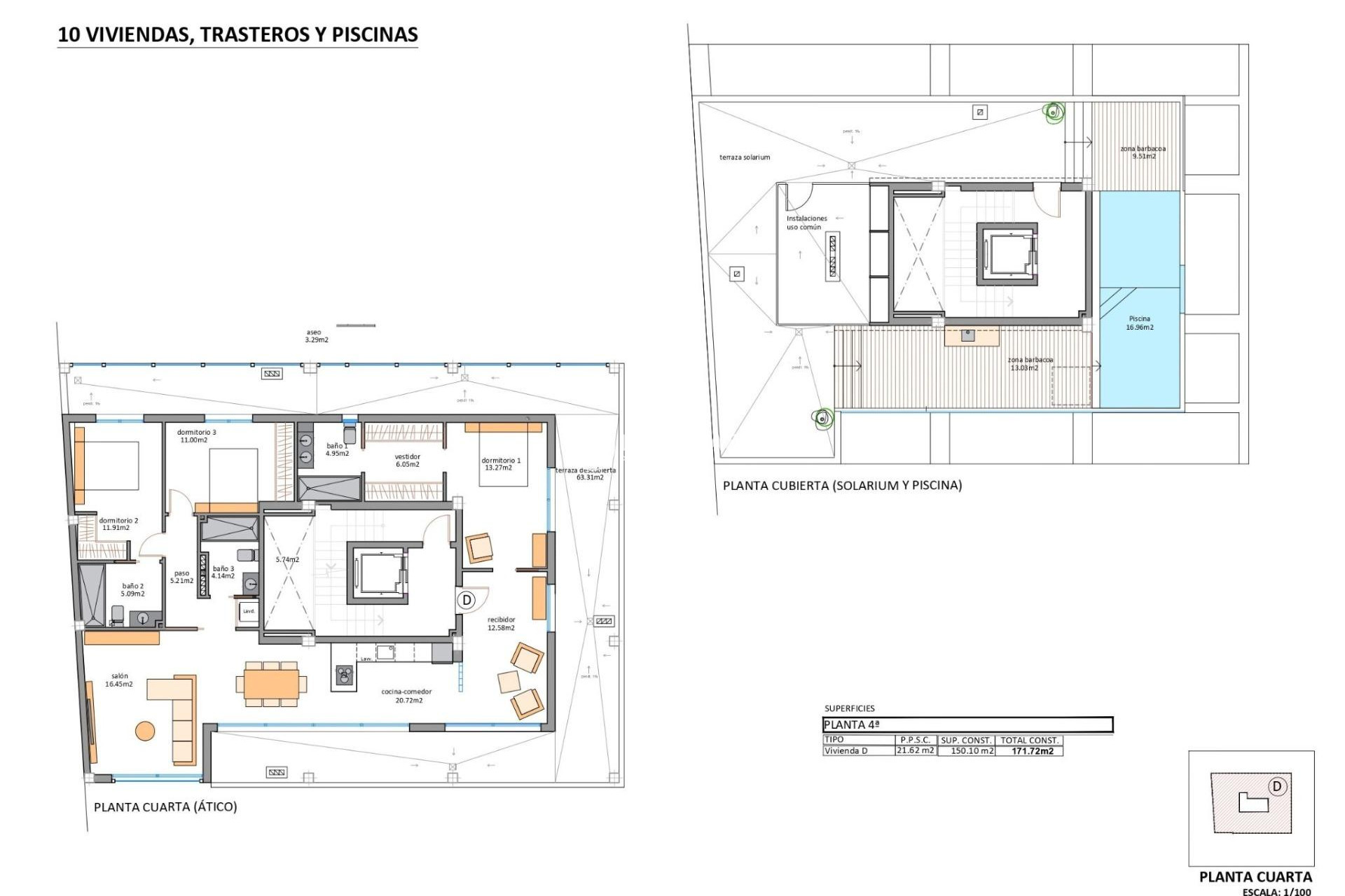
Apartamentos de nueva construcción a solo 100 m de la playa en Lo Pagán, San Pedro del Pinatar Exclusiva urbanización costera en una ubicación privilegiada Este complejo residencial de nueva construcción consta de solo 10 modernos apartamentos situados en Lo Pagán, San Pedro del Pinatar, a menos de 100 metros de la playa. Ubicado en una de las zonas más atractivas del Mar Menor, este complejo ofrece una combinación perfecta entre el confort de vivir junto al mar y un excelente potencial de inversión. Lo Pagan es conocida por su ambiente relajado, sus baños de barro naturales y su proximidad tanto al Mar Menor como al mar Mediterráneo. Apartamentos modernos y una opción única de ático El proyecto ofrece amplios apartamentos de dos dormitorios con dos baños, incluyendo un dormitorio principal con baño en suite. Todas las viviendas cuentan con cocinas abiertas conectadas a luminosas zonas de estar, creando espacios funcionales y acogedores. Lo más destacado de la promoción es un exclusivo ático de tres dormitorios y tres baños con una gran terraza, un solárium privado en la azotea y su propia piscina, que ofrece un estilo de vida excepcional con privacidad y vistas despejadas. Acabados de alta calidad y características de confort Todas las viviendas están construidas con altos estándares de calidad e incluyen baños equipados con muebles, espejos iluminados, toalleros eléctricos y mamparas de ducha. Las cocinas están totalmente equipadas con electrodomésticos y armarios modernos. Las persianas motorizadas y el sistema de aire acondicionado por conductos totalmente instalado garantizan el confort durante todo el año. Hay plazas de aparcamiento y trasteros opcionales disponibles con un coste adicional, lo que proporciona una comodidad extra a los residentes. Atractivas zonas comunes El complejo residencial cuenta con una piscina comunitaria ideal para relajarse y disfrutar del clima mediterráneo. El número limitado de unidades garantiza un entorno tranquilo y exclusivo, perfecto tanto para vivir de forma permanente como para pasar las vacaciones. Estilo de vida en Lo Pagán y San Pedro del Pinatar San Pedro del Pinatar goza de una ubicación privilegiada entre el Mar Menor y el mar Mediterráneo, lo que lo convierte en un destino muy popular para los amantes de los deportes náuticos y la playa. La zona cuenta con puertos deportivos, clubes náuticos y aguas poco profundas y seguras, ideales para las familias. Lo Pagan es famoso por sus baños de barro naturales y su largo paseo marítimo, repleto de restaurantes, cafeterías y tiendas. La ciudad ofrece excelentes instalaciones, como centros deportivos, una piscina cubierta y actividades sociales durante todo el año, gracias a su clima templado en invierno. Excelente conectividad y servicios cercanos El centro comercial Dos Mares está a solo 2 km y ofrece una amplia gama de tiendas, restaurantes y opciones de ocio. El puerto deportivo y el puerto de San Pedro del Pinatar se encuentran a aproximadamente 1,5 km de la urbanización. Los amantes del golf encontrarán varios campos a poca distancia en coche, incluido el Lo Romero Golf, a unos 10 km. Distancias clave a puntos de interés Playa de Lo Pagán: 0,1 km Puerto deportivo de San Pedro del Pinatar: 1,5 km Centro comercial Dos Mares: 2 km Lo Romero Golf: 10 km Aeropuerto de Murcia Corvera: 35 km Aeropuerto de Alicante: 80 km Asegure hoy mismo su vivienda junto a la playa Póngase en contacto con nosotros ahora para recibir más información o concertar una visita a estos exclusivos apartamentos de nueva construcción a pocos pasos de la playa en Lo Pagán, San Pedro del Pinatar.